Eladó Családi ház Vác - Deákvár

122 m2Alapterület 5 Szoba
295 000 000 Ft Ár
393539Azonosító
További adatok

838 m2 Telek

Panoráma Kilátás

Újszerű Állapot

Tégla Szerkezet

23 m2 Erkély/terasz

Elektromos Fűtés

Dupla komfort Komfort

Saját garázs Parkolás

Tömegközlekedés

Amerikai konyhás

Van Kertkapcsolat

2021 Építés éve

Déli Tájolás

Hitelkalkuláció – a részletekért kattintson valamelyik bank logójára!

Csodálatos panorámás, igényes, 2 szintes, családi otthon Vác közkedvelt városrészében eladó!

Az ingatlan gondos hozzáértéssel épült, kifejezetten elegáns, rendezett környezetben található Vácon. A tulajdonos saját maga és családja számára építette ezt a gyönyörű házat, ezért a leendő lakója egy valódi otthonra lelhet benne.

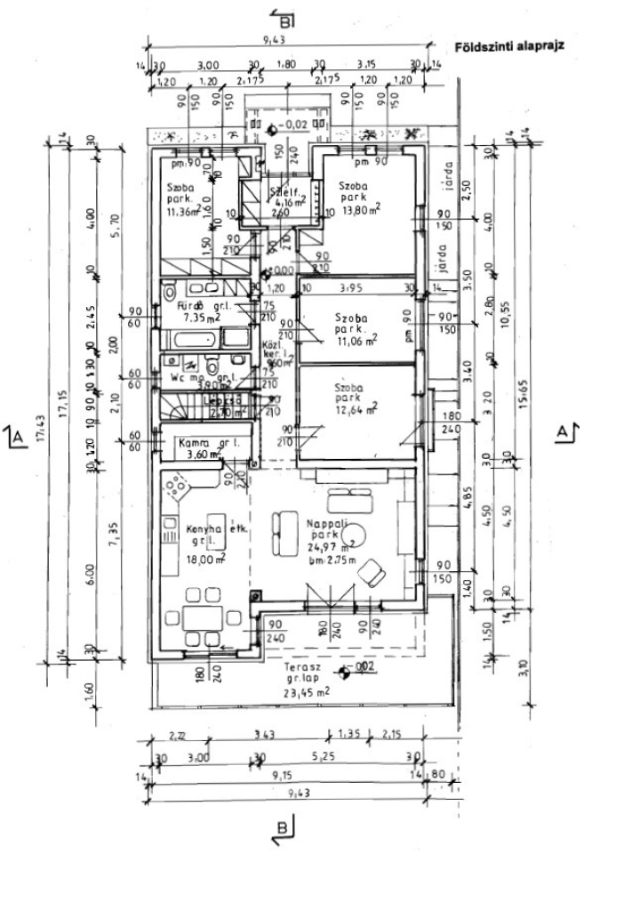
A lankás teleknek köszönhetően utcafronton 1, a kert felé pedig 2 szintes az épület. A pince szinten 2 állásos, tágas garázs, tároló résszel, egy nyárikonyha és egy zuhanyzó kapott helyet. A földszinten 4 szoba, 2 fürdőszoba és hatalmas, tágas nappali egy légtérben, mégis némileg elkülönülten található az étkező és a teljesen felszerelt konyha. A nappaliból nyílik az erkély, ahol kényelmesen elfér egy 6-8 személyes étkezőasztal. A teraszról és a pince szintről is a kertbe jutunk, ahol a csodálatos panoráma mellett egy medence is elénk tárul, amit a kiépített hőszivattyús rendszerrel fűteni is tudunk. A kertben automata (robot) fűnyíró gondoskodik a tulajdonosok kényelméről.

Műszaki tudnivalók:
A ház 2021-ben épült 30-as Porotherm téglából, melyre 15 cm grafit szigetelés került. A födém fa szerkezetű, ami teljes egészében szigetelt. 5 kw-os napelem látja el a ház elektromos áram igényét. A ház fűtése elektromos kazán, de rendelkezésre áll kandalló és több hűtő-fűtő klímaberendezés is. A kimagasló minőségi járólappal burkolt földszinten padlófűtés, az alsó szinten radiátorok biztosítják a meleget. A szobák ablakain szúnyogháló véd a nemkívánatos rovaroktól, műanyag redőnyök pedig a hőségtől. A nappali hatalmas üvegfelületeinél elektromos redőny beépítésének lehetősége kialakításra került. A helyiségek belmagassága 270 cm. A házban hatalmas gardrób- és tárolószekrények, teljesen gépesített konyha szolgálja a kényelmet.

A környék infrastruktúrája kiváló: tömegközlekedési lehetőségek, bevásárlóközpontok, boltok, iskola, óvoda, orvosi rendelő rövid sétatávolságon belül elérhetők. A környék csendes, mégis minden fontos szolgáltatás könnyen hozzáférhető. A Vác közeli hegyekben remek kiránduló útvonalak és tanösvények várják a látogatókat. A Duna közelsége lehetőséget ad a vízi sportok űzésére és a kiépített kerékpárút az egész Dunakanyart lefedi. A közvetlen szomszédok kedvesek, barátságosak és megbízhatóak.

Főbb jellemzők
•Földszint: 122 m²
•Pince szint: 68 m²
•Terasz: 23 m²
•Fűthető medence: 7m x 3,5m
•Szobák száma: 5
•Fürdőszobák száma: 2
•WC: külön 2
•Fűtés: elektromos kazán és hűtő-fűtő klímák
•Szintek száma: 2.
•Garázs: 2 beállós

További információért forduljon hozzám bizalommal!

Amivel segítjük az Ön ingatlanvásárlását:
•ingyenes, bankfüggetlen hitelügyintézés (CSOK és Babaváró ügyintézése is.)
•jogi háttér
•földhivatali ügyintézés
•energetikai tanúsítvány elkészítése
•biztosítás
Molnár Rozália

Molnár Rozália

Hívjon bizalommal

+36-20-329-Mutasd!

További hirdetéseim

Ingatlaniroda
GDN Ingatlanhálózat - Újpest
+36 1 797 3933

Küldjön üzenetet

Visszahívást kérek

Hasonló ingatlanok