Eladó Ikerház Taksony - Taksony Központ

125 m2Alapterület 4 + 1 Szoba
114 900 000 Ft Ár
389517Azonosító
További adatok

116 m2 Telek

Kertre néző Kilátás

Új Állapot

Tégla Szerkezet

10 m2 Erkély/terasz

Hőszivattyú Fűtés

Összkomfort Komfort

Saját garázs Parkolás

Tömegközlekedés

Amerikai konyhás

Van Kertkapcsolat

2026 Építés éve

Hitelkalkuláció – a részletekért kattintson valamelyik bank logójára!

Taksonyban új építésű A+++ GARÁZS kapcsolatos ikerházak ELADÓK!

Taksony budapesti agglomerációban található nagyközség, ahonnan több lehetőségünk is van könnyedén bejutni a fővárosba, de otthon élvezhetjük a kertváros nyugalmát.

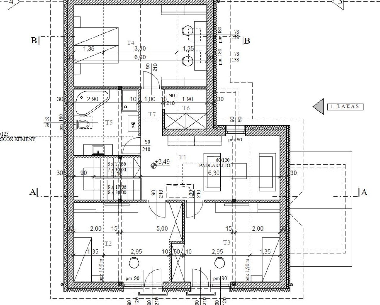
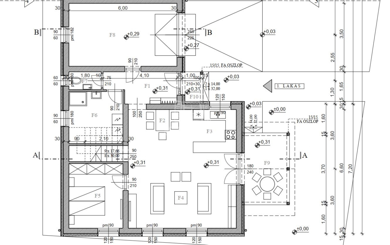
Újpítésű, energiatakarékos ikerházak, melyek tágas fényes terekkel, saját garázzsal, amerikai konyhás nappalival, kertkapcsolatos terasszal, 4 szobával, gardróbbal várják hogy valakinek az otthonává válhasson.
Itt minden megépül ahhoz hogy jól érezze magát egy hosszú nap után, akár nyáron a teraszon vagy téli estéken a tágas nappaliban is elfér az egész család.

Az épület beton alapra (12cm lépésálló hőszigetelés a fsz), 30-as tégla falazattal (+15cm szigeteléssel), beton cserép fedéssel (+15cm szigeteléssel) épül.
Fűtése, meleg vízellátása hőszivattyúval történik

A burkolatok és a szaniterek keretösszegig választhatók.

A Telekre 2db ikerház épül,
mindegyik 124.5nm+10nm fedett terasz+21nm garázs

1lakás: 114.9mft (telek: 115.5 nm)
2lakás: 129.9mft (telek: 375.3 nm)
3lakás: 129.9mft (telek: 381 nm)
4lakás: 134.9mft (telek: 438.2 nm)

Várható átadás 2026.Június.

Várom megtisztelő hívását a hét bármelyik napján!

FINANSZÍROZÁS:
Nálunk mindent egy helyen intézhet:
- hivatalos ingatlanközvetítés;
- szakszerű jogi képviselet;
- profi CSOK-PLUSZ, és hitelügyintézés: 16 Bank, több mint 100 konstrukció;

A részletes adatvédelmi tájékoztató folyamatosan elérhető a gdn ingatlan adatvédelmi oldalon.
Gombár János

Gombár János

Hívjon bizalommal

+36-30-338-Mutasd!

További hirdetéseim

Ingatlaniroda
GDN Ingatlanhálózat - Újpest
+36 1 797 3933

Küldjön üzenetet

Visszahívást kérek

Hasonló ingatlanok