Eladó Családi ház Sármellék - Központ

108 m2Alapterület 3 Szoba
199 000 €(~ 72 410 130 Ft)
394072Azonosító
További adatok

1522 m2 Telek

Udvari Kilátás

Jó állapotú Állapot

Vályog Szerkezet

Házközponti Fűtés

Saját garázs Parkolás

Közepes Tömegközlekedés

Nem Amerikai konyhás

1980 Építés éve

Hitelkalkuláció – a részletekért kattintson valamelyik bank logójára!

Sármelléken, csendes, mégis központi elhelyezkedéssel, a Balaton, valamint a híres hévízi és zalakarosi termálfürdők közelében eladó ez a gondozott, felújított családi ház.
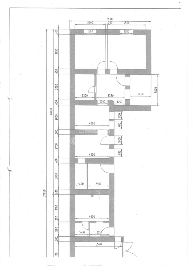
A ház lakóterülete 108 m2, amely egy tágas, 1 522 m2-es telken helyezkedik el. Az épület hagyományos vályog falazattal épült, a falak vastagsága körülbelül 50–60 cm, ami kellemes belső klímát biztosít. A tető cserépfedésű és szigetelt, az ablakok pedig fa szerkezetűek, két rétegű üvegezéssel.
A ház fűtését gázkazán és kandalló biztosítja, emellett klímaberendezések is találhatók az épületben. A fürdőszoba már felújításra került, a nappaliban pedig új padlóburkolat készült. A villany-, víz- és csatornahálózat 2000-ben lett korszerűsítve. 2023–2024-ben felújító vakolat és páraáteresztő festés került az épületre, ami tovább javítja az ingatlan állapotát.
A ház praktikus elrendezésű. Az utcafront felé két nagy szoba található. Emellett egy étkező / nappali, egy teraszkapcsolatos, nyitott konyha, egy kamra, egy tágas fürdőszoba és egy előszoba tartozik az ingatlanhoz.
A lakóépülethez kapcsolódva további hasznos helyiségek is rendelkezésre állnak: egy külön mosó- és nyári konyha, egy vendégapartman saját főzősarokkal és zuhanyzóval, egy egyállásos garázs, valamint egy dupla garázs műhellyel.
A gondosan kialakított telek gyümölcsfákkal, kúttal és ciszternával rendelkezik, így ideális választás kertkedvelők számára. A ház egyik különlegessége a fedett, déli fekvésű terasz, amely az utcáról nem belátható, így nyugodt pihenésre és kikapcsolódásra tökéletes.
Sármellék kiváló elhelyezkedésű település, mindössze néhány percre a Balatontól, a híres hévízi termálfürdőtől és a történelmi Keszthely városától. A közelben bevásárlási lehetőségek, éttermek, orvosi rendelők és gyógyszertárak is megtalálhatók. A településen németül beszélő háziorvos is elérhető, ami különösen előnyös lehet külföldi vásárlók számára. A térség jó infrastruktúrával és közlekedési kapcsolatokkal rendelkezik.
Molnár Rozália

Molnár Rozália

Hívjon bizalommal

+36-20-329-Mutasd!

További hirdetéseim

Ingatlaniroda
GDN Ingatlanhálózat - Újpest
+36 1 797 3933

Küldjön üzenetet

Visszahívást kérek

Hasonló ingatlanok