Eladó Ikerház Ráckeve - Arany János u.

256 m2Alapterület 6 + 2 Szoba
160 000 000 Ft Ár
392229Azonosító
További adatok

1236 m2 Telek

Utcai Kilátás

Új Állapot

Tégla Szerkezet

8 m2 Erkély/terasz

Gáz (cirkó) Fűtés

Dupla komfort Komfort

Saját garázs Parkolás

Tömegközlekedés

Amerikai konyhás

Van Kertkapcsolat

2025 Építés éve

Délkeleti Tájolás

Hitelkalkuláció – a részletekért kattintson valamelyik bank logójára!

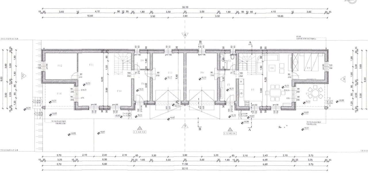
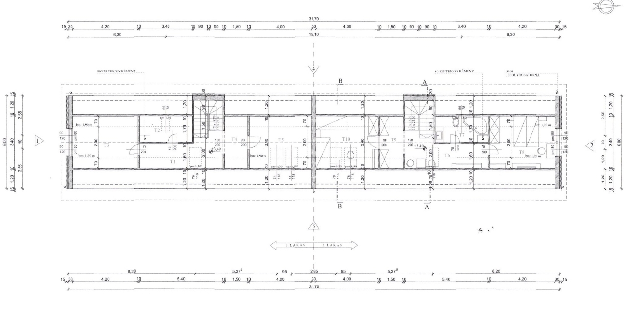
Ráckevén csendes utcában 2 lakásos ikerház, mindkét fele, 90 % készültségben eladó. 33% helyben előállított villamosenergia napelem rendszerrel. Minden támogatás igénybe vehető!

Ráckevén: Budapestől 40-km távolságra a Hév végállomástól és a busz végállomástól séta távolságra. Tesco, Aqualand és a kis-Dunapart is séta távolságra. A nagy-duna 5 km távolságra. Az MO -ás 30 km, a Savoyai kastély mögött. Magyarországon egyedülálló csónakos-piac 1,5 km.
Elhelyezkedés: Ráckeve északi részén az új fejlesztési övezetben.” nem újtelepi”
A lakás 90% készültségi állapotban van. 102 nm + 102nm nettó alapterületű 2 szintes, + kétszer 19 nm fűtött garázzsal. Összesen 242m2. Kétszer 3 szoba amerikai konyha, nappali, fedett terasz, dupla komfort, gardrób. 33% helyben előállított villamosenergia, amiről napelemek gondoskodnak. A locsoláshoz fúrt kút biztosítja a vizet. Klíma kiállások előkészítve. Riasztórendszer kiépítve. Az konyhabútor elkészítéséhez szakembert tudunk biztosítani!
A lakások 1313 nm körülkerített telken találhatók. A ház:2024-es építési szabványnak megfelelően épült.
Rövid műszaki leírás.
C-12-16/kk beton sávalapozás, 30-as porotherm tégla a főfal 10-es porotherm a válaszfal, a födém vasbeton e-gerenda szerkezettel a héjazat leier betont cserép az eresz horganyzott bádog. Ablakok műanyag thermo 3 rétegű üveggel és gáz töltéssel, Antracit alu redőnyök és szúnyoghálók motoros mozgatással. Garázskapu antracit motoros mozgatással. Aljzatok 12 cm drivyt, homlokzat 15 cm drivyt, tető 25 cm kőzet gyapottal készült. A járda autó behajtó viacolor burkolattal rendelkezik 200 nm-en. A kapu elektromos mozgatású. A fűtés és melegvíz ellátásáról mindkét lakásban külön-külön kombi cirkó kondenzációs gázkazán gondoskodik. A villamos energiaszámla csökkentéséről napelemek gondoskodnak.

Az ingatlanok eladási árai!
1. lakás 1. opció 82 M Ft 650 m2 -es telekkel
1. lakás 2. opció 76 M Ft 50 m2 -es előkertel
2. lakás 1. opció 82 M Ft 650 m2 -es telekkel
2. lakás 2. opció 88 M Ft 1300 m2 -es telekkel

FINANSZÍROZÁS:
Nálunk mindent egy helyen intézhet:
- hivatalos ingatlanközvetítés;
- szakszerű jogi képviselet;
- profi CSOK-PLUSZ, és hitelügyintézés: 16 Bank, több mint 100 konstrukció;

Kérésére, műszaki leírást, nagy-felbontású alaprajzot küldök!

VÁROM MEGTISZTELŐ HÍVÁSÁT!

A részletes adatvédelmi tájékoztató folyamatosan elérhető a www.gdn-ingatlan.hu/adatvedelem oldalon.
Gombár János

Gombár János

Hívjon bizalommal

+36-30-338-Mutasd!

További hirdetéseim

Ingatlaniroda
GDN Ingatlanhálózat - Újpest
+36 1 797 3933

Küldjön üzenetet

Visszahívást kérek

Hasonló ingatlanok