Eladó Családi ház Nyíregyháza - Gólyahír lakópark 1

109 m2Alapterület 4 Szoba
89 000 000 Ft Ár
388007Azonosító
További adatok

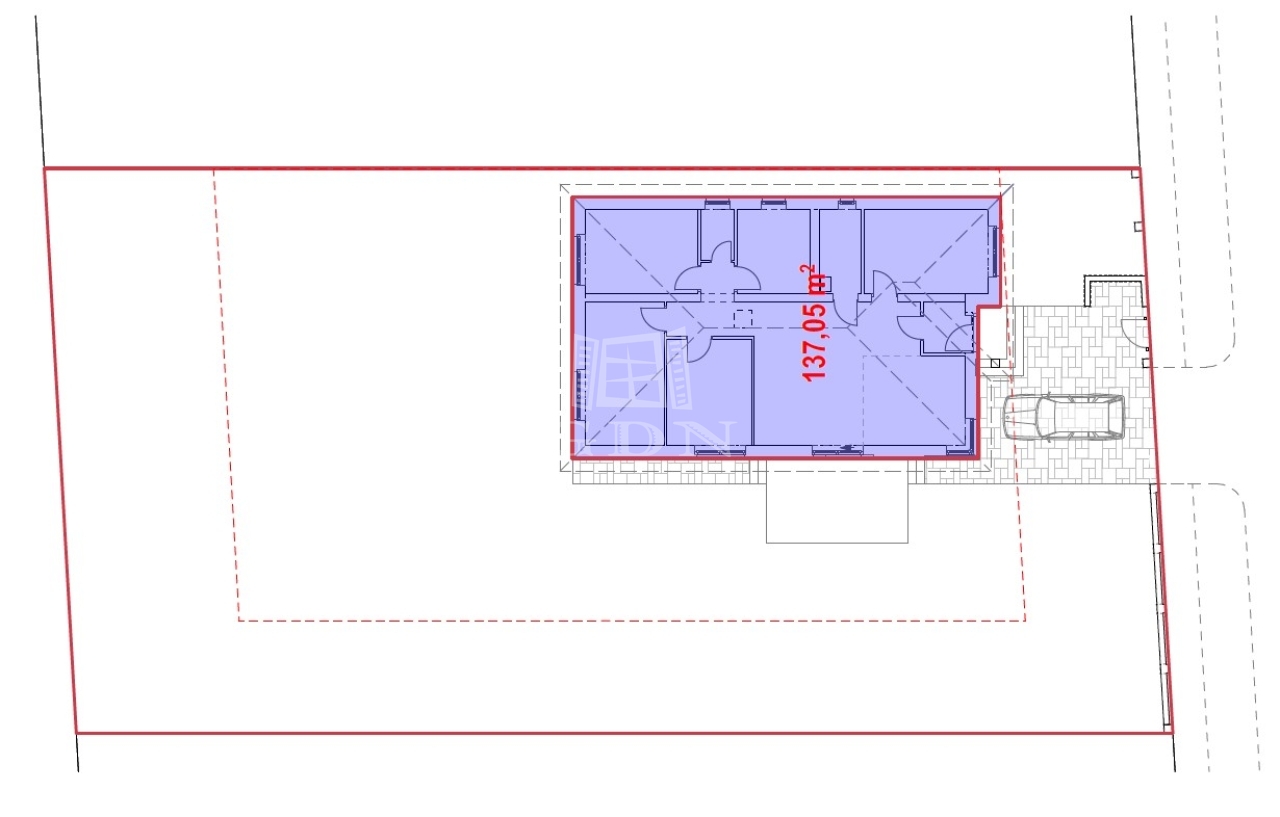
781 m2 Telek

Panoráma Kilátás

Új Állapot

Tégla Szerkezet

Gáz (cirkó) Fűtés

Dupla komfort Komfort

Saját beálló Parkolás

Közepes Tömegközlekedés

Amerikai konyhás

Van Kertkapcsolat

2025 Építés éve

Hitelkalkuláció – a részletekért kattintson valamelyik bank logójára!

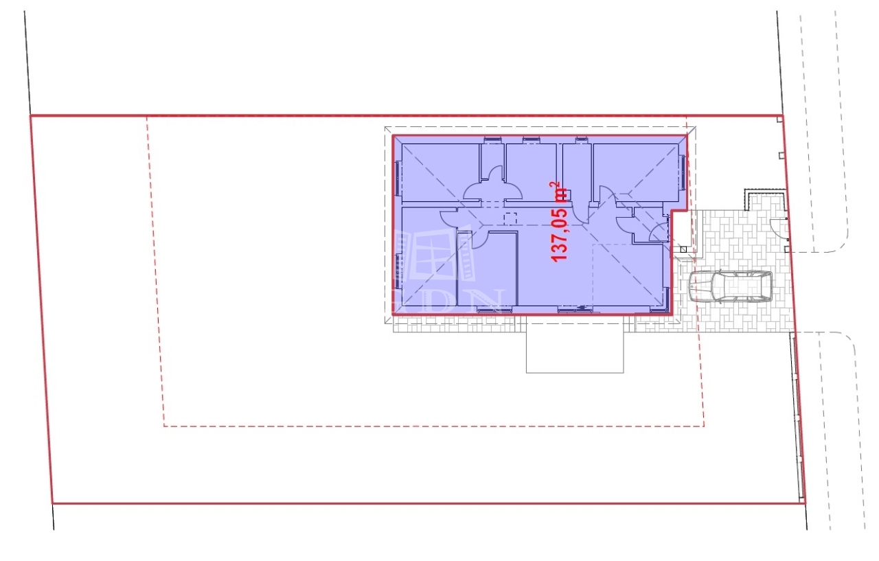
Eladó Nyíregyháza Nyírszőlős részén a Gólyahír lakóparkban 2025-ben épülő új amerikai stílusú A++ besorolású 4 szobás kertes családi ház. (T/1)

Ára: 89.000.000 Ft.

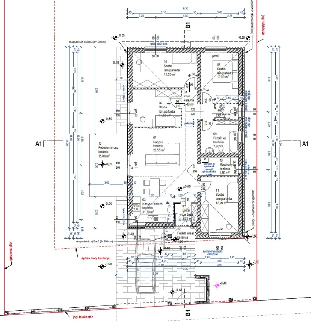
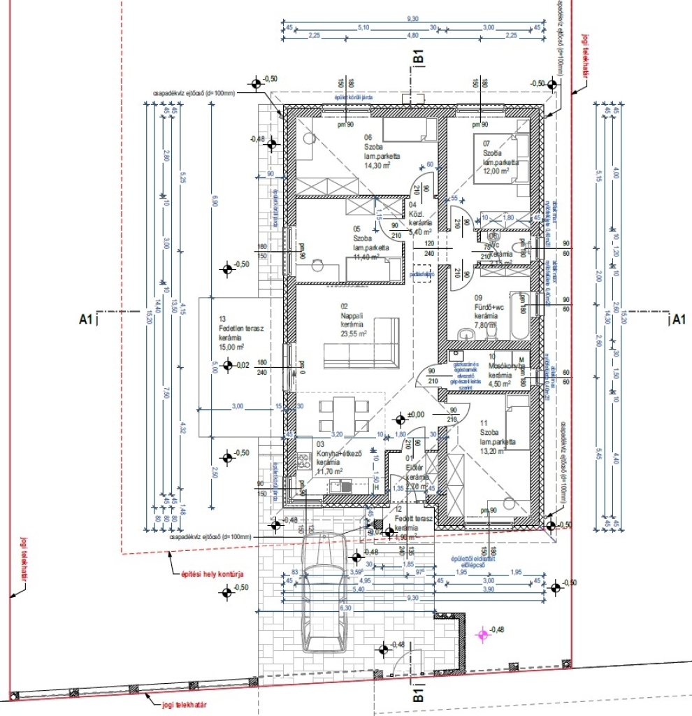
Az ingatlan alap méretei:
- a telek mérete: 781nm,
- a ház alapterülete: 137nm.

Az épület hasznos alapterülete 108,7nm melyben található:
- 4 szoba,
- amerikai konyhás nappali,
- fürdőszoba + WC,
- mosókonyha,
- WC,
- közlekedő,
- előtér,
- fedett terasz.


Az új építésű családi ház várhatóan 8 hónapon belül kerül átadásra, mely korszerű hő takarékos építészeti megoldásokat alkalmazva készül el. A falazata 30-as téglából épül, mely 15 cm-es EPS homlokzati hőszigetelést kap. A födém szerkezete 15 cm-es ásványszálas hőszigetelésű lesz, így az egész épület energetikai szempontból A++ kategóriájú.

Az amerikai stílusú kombinált sátortető cseréppel lesz fedve. Az épületben áram, víz, gáz és csatorna szintén bekötésre kerül. Az épület padlófűtéssel, radiátoros fűtéssel vagy kérés esetén a kettő kombinációjával készül el, mely gáz cirkó kazánról fog működni. Ezen kívül még 2 db hűtő-fűtő klíma is rendelkezésre fog állni. A melegvíz ellátásról szintén a gáz cirkó kazán gondoskodik.

Az ingatlan ideális választás lehet mindazok számára, akik új építésű, modern energiatakarékos otthont keresnek nyugodt kertvárosi környezetben.

Fontos!
Az ingatlan per és tehermentes, 3 gyerekes CSOK Plusz is igénybe vehető!

Figyelem!
Minőségi kivitelezés és választható belső burkolatok, szaniterek.
2025-ös energetikai szabványoknak megfelelő modern megoldások.
A belső elrendezés igény szerint módosítható.

Ha felkeltette érdeklődését, hívja irodánkat bizalommal!
Ha hitelre van szüksége éljen ingyenes, személyre szabott hitel ügyintézési szolgáltatásunkkal is.
Molnár Rozália

Molnár Rozália

Hívjon bizalommal

+36-20-329-Mutasd!

További hirdetéseim

Ingatlaniroda
GDN Ingatlanhálózat - Újpest
+36 1 797 3933

Küldjön üzenetet

Visszahívást kérek

Hasonló ingatlanok