Eladó Lakás (panel) Budapest XI. kerület - Etele út

48 m2Alapterület 2 Szoba
80 000 000 Ft Ár
393337Azonosító
További adatok

Kertre néző Kilátás

Felújított Állapot

Beton Szerkezet

4 m2 Erkély/terasz

Távfűtés egyedi mérővel Fűtés

Összkomfort Komfort

Utcán, közterületen Parkolás

Emelet 2

Van Lift

Kiváló Tömegközlekedés

Nem Amerikai konyhás

Nincs Kertkapcsolat

1970 Építés éve

Déli Tájolás

Hitelkalkuláció – a részletekért kattintson valamelyik bank logójára!

Bikás park és a Fehérvári út között, a 4-es metró megállójától mindössze 3 perc sétára, parkos környezetben eladó egy déli–északi tájolású, két szobás, tehermentes lakás eladó.

A lokáció kiváló: a közelben található a 4-es metró, az Etele Pláza, az Újbuda Center, az Allee bevásárlóközpont, valamint a Kelenföldi pályaudvar.

A társasház részt vett a Panel Programban, így teljes körű felújításon esett át: hőszigetelt homlokzat, rendezett, szép állapotú lépcsőház és megbízható közös képviselet jellemzi.

A lakás a második emeleten helyezkedik el, világos és jól átszellőztethető. Déli oldalon az Etele úttal párhuzamos zöld sávra, északi irányban a ház mögötti parkolóra és játszótérre néz.

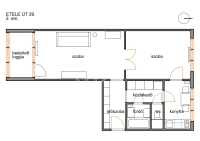
Az ingatlan praktikus elosztású, napfényes, jó állapotú. A szobák külön bejáratúak, kétszárnyú ajtóval elválaszthatók vagy igény szerint egybenyithatók, így akár irodának is kiváló választás lehet.

A konyha ablakkal rendelkezik, így természetes módon szellőztethető. A déli oldalon található beépített erkély hőszigetelt, redőnnyel felszerelt ablakai teljesen kitárhatók.

A lakás teljes villamoshálózata (vezetékek, lakáselosztó, biztosítékok, szerelvények és világítás) felújításra került, a lakás frissen festett. Új, gépesített konyhabútor került beépítésre.

Az ingatlanban beépített szekrények, bútorok (új kinyitható kanapé, design komódok, lámpák, modern szőnyeg és függönyök), valamint hűtőszekrény és mosógép is található.

A lakáshoz a szinten közös tároló tartozik.
Az alaprajz méretarányos és pontos, a feltöltött fotók a valós állapotot mutatják.

Megállapodás szerint Otthon Start és CSOK Plusz támogatással is megvásárolható.
A lakás azonnal költözhető.

P.P.
Molnár Rozália

Molnár Rozália

Hívjon bizalommal

+36-20-329-Mutasd!

További hirdetéseim

Ingatlaniroda
GDN Ingatlanhálózat - Újpest
+36 1 797 3933

Küldjön üzenetet

Visszahívást kérek

Hasonló ingatlanok