Eladó Családi ház Baja - Szentjánosi utca

174 m2Alapterület 3 Szoba
112 000 000 Ft Ár
384040Azonosító
További adatok

345 m2 Telek

Utcai Kilátás

Újszerű Állapot

Vegyes falazat Szerkezet

12 m2 Erkély/terasz

Gáz (cirkó) Fűtés

Luxus Komfort

Saját garázs Parkolás

Tömegközlekedés

Amerikai konyhás

Van Kertkapcsolat

1980 Építés éve

Keleti Tájolás

Hitelkalkuláció – a részletekért kattintson valamelyik bank logójára!

Eladó exkluzív családi ház Baján – luxus, kényelem, nyugalom a Duna közelében

Baján, egy csendes kis utcában – mégis mindenhez közel – eladásra kínálunk egy különleges hangulatú, exkluzív családi házat, amely a luxust és az otthon melegét ötvözi.

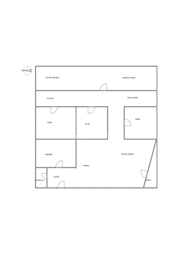
A 174 m²-es otthon kiváló elrendezésű:

3 kényelmes szoba

külön gardrób

tágas nappali

konyha étkezővel

modern fürdőszoba

külön mosókonyha

A prémium felszereltség a mindennapi életet igazi élménnyé varázsolja:
✅ Teljesen felszerelt, stílusos konyha
✅ Otthoni mozi rendszer
✅ Korszerű klímatechnológia
✅ Infra szauna a hátsó folyosón
✅ Kinti medence jakuzzi funkcióval
✅ Gondozásmentes, műfüves terasz

Elhelyezkedés: A ház ideális környezetben található – csendes utca, mégis pár percre a város legfontosabb pontjaitól: Tesco, Lidl, Family Center, MNÁMK – minden gyorsan elérhető.

Ez az ingatlan tökéletes választás azoknak, akik nem szeretnének kompromisszumot kötni a kényelem, a stílus és az elhelyezkedés között.
Gombár János

Gombár János

Hívjon bizalommal

+36-30-338-Mutasd!

További hirdetéseim

Ingatlaniroda
GDN Ingatlanhálózat - Újpest
+36 1 797 3933

Küldjön üzenetet

Visszahívást kérek

Hasonló ingatlanok