Eladó Ikerház Pécel - Százszorszép utca

100 m2Alapterület 4 Szoba
99 000 000 Ft Ár
388119Azonosító
További adatok

504 m2 Telek

Kertre néző Kilátás

Új Állapot

Tégla Szerkezet

15 m2 Erkély/terasz

Hőszivattyú Fűtés

Összkomfort Komfort

Saját beálló Parkolás

Tömegközlekedés

Amerikai konyhás

Van Kertkapcsolat

2025 Építés éve

Délnyugati Tájolás

Hitelkalkuláció – a részletekért kattintson valamelyik bank logójára!

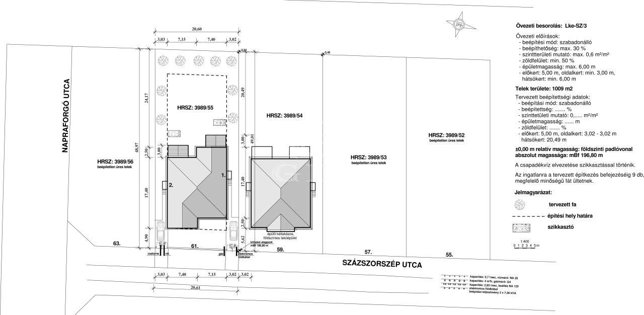
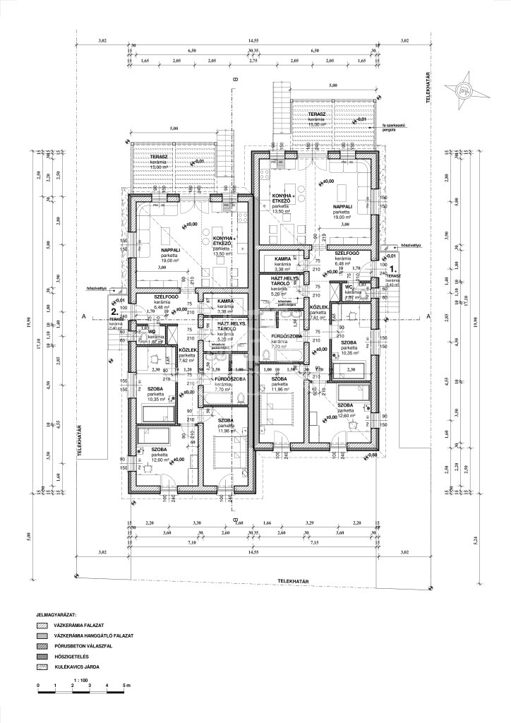
Pécelen a Százszorszép utca 61. szám alatt 1009m2-es telkeken, újonnan épülő nettó 99,66 m2 hasznos lakótérrel rendelkező, kulcsrakész ikerházfelek eladóak!

A bal oldali ikerfél elkelt!

Az ingatlanok 30-as Nútféderes tégla falazóelemből épülnek, fa födémmel. A tető héjazata antracit síkcserép lesz, a homlokzatok 15cm EPS, a padló 10cm lépésálló, a födém 25cm ásványgyapot szigeteléssel lesz ellátva.

A külső nyílászárók 6 légkamrás háromrétegű üveggel szerelt műanyag thermók lesznek.

A fűtést monoblockos hőszivattyús rendszer fogja ellátni, padlófűtéssel.

A teraszok alatt tároló kerül kialakításra.


Klíma előkészítés is készül.

Műszaki tartalom:

-Csempe, járólap 5000 ft/m²
-Meleg burkolat 5000 Ft/m²
-Fürdőkád vagy Zuhanyzó: 60.000.- Ft
-Beltéri ajtók br. 50.000.- Ft. /db
-Csaptelepek: 15.000.- Ft. /db

Magasabb árú választás is lehetséges a különbség finanszírozásával.

Elektromos kiépítés:
-60db szerelvény /konnektor, kapcsoló, tv, internet/
-Kábeltévé: Előkészítés
-Kapumozgató elektronika: előkészítés
-Riasztó: előkészítés


Az utcafronti kerítés színezett zsalukővel, fa lécezéssel készül.

Tervezett átadás 2026 második negyedév.

Érdeklődő ügyfeleinknek a tervdokumetációt és a műszaki tartalmat készséggel rendelkezésre bocsájtjuk.

A kivitelező korábban számos ingatlant épített Isaszegen, Sülysápon, Dányban. Komoly érdeklődés esetén szívesen mutatunk referenciát!


INGYENES hitel tanácsadás, CSOK Plusz és Otthon Start ügyintézés!
BANKFÜGGETLEN hitelcentrumunk az összes elérhető bank és hitelintézet ajánlatát versenyezteti az Ön kedvéért, ráadásul DÍJMENTESEN.

- Egyedi, bankfiókban nem elérhető kamat- és díjkedvezmények
- Hitelképesség vizsgálat
- Idő, energia és pénz megtakarítás
- Teljes hivatali ügyintézés

Amennyiben hirdetésem felkeltette az érdeklődését vagy egyéb információra van szüksége hívjon bizalommal!
Gombár János

Gombár János

Hívjon bizalommal

+36-30-338-Mutasd!

További hirdetéseim

Ingatlaniroda
GDN Ingatlanhálózat - Újpest
+36 1 797 3933

Küldjön üzenetet

Visszahívást kérek

Hasonló ingatlanok