Eladó Lakás (csúsztatott zsalu) Budapest X. kerület - Kőrösi Csoma sétány

63 m2Alapterület 3 Szoba
79 990 000 Ft Ár
393902Azonosító
További adatok

Utcai Kilátás

Felújított Állapot

Tégla Szerkezet

4 m2 Erkély/terasz

Távfűtés egyedi mérővel Fűtés

Összkomfort Komfort

Utcán, közterületen Parkolás

Emelet 3

Nincs Lift

Kiváló Tömegközlekedés

Amerikai konyhás

Nincs Kertkapcsolat

1990 Építés éve

Hitelkalkuláció – a részletekért kattintson valamelyik bank logójára!

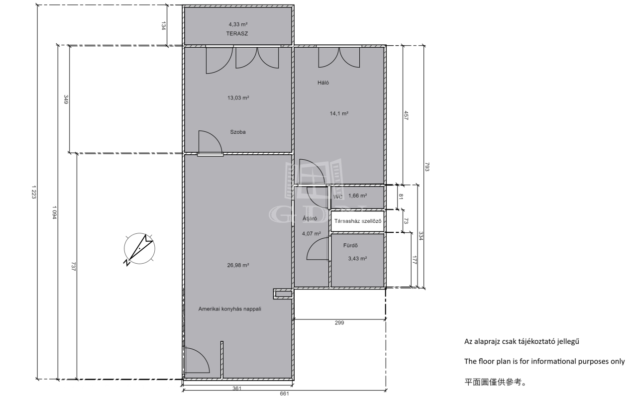
Kőbánya-Városközpont sétálóutcájában, kis lakásszámú, kulturált lakóközösségű, tiszta-rendezett lépcsőházban, eladásra kínálok, egy teljeskörűen felújított, 63 m2-es, nagy erkélyes, ablakos konyhás, három szobás, klimatizált lakást.

A felújítás során biztonsági bejárati ajtó, modern beltéri ajtók, műanyag nyílászárók beépítésére, a víz, villanyhálózat, szaniterek, szerelvények, burkolatok cseréjére, a falak festésére került sor.

A társasháztól sétatávolságra számos tömegközlekedési eszközt ( kötött pályást is), közintézményt, üzletet és egyéb szolgáltatást is találunk!

Az ingatlan megtekinthető a hét bármely napján!
Várom a hívását, akár hétvégén is!

B.Cs.
Gombár János

Gombár János

Hívjon bizalommal

+36-30-338-Mutasd!

További hirdetéseim

Ingatlaniroda
GDN Ingatlanhálózat - Újpest
+36 1 797 3933

Küldjön üzenetet

Visszahívást kérek

Hasonló ingatlanok