Eladó Családi ház Gödöllő - Szilágyi Erzsébet utca

169 m2Alapterület 4 Szoba
115 000 000 Ft Ár
390624Azonosító
További adatok

548 m2 Telek

Kertre néző Kilátás

Felújított Állapot

Tégla Szerkezet

80 m2 Erkély/terasz

Gáz (cirkó) Fűtés

E Energetika

Összkomfort Komfort

Saját garázs Parkolás

Tömegközlekedés

Nem Amerikai konyhás

Van Kertkapcsolat

2004 Építés éve

Délnyugati Tájolás

Hitelkalkuláció – a részletekért kattintson valamelyik bank logójára!

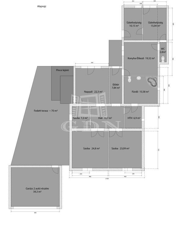
Gödöllőn 548 m2-es telken a Szilágyi Erzsébet utca és a Hunyadi János utca között, két utcafronttal, nettó 168,72m2-es + 34,3m2-es kétautós garázzsal, 13,5m2-es pincével és 70 m2-es fedett terasszal rendelkező családi ház eladó!

A 2004-ben épült és folyamatosan modernizált ingatlanban a Hunyadi János utca felőli utcafronti bejárattal egy 35 m2-es üzlethelyiség található. A homlokzati falak 30-as és 38-as tégla falazattal épültek, melyeket 10cm-es EPS dryvit szigeteléssel láttak el. A külső nyílászárók műanyag thermó üvegekkel szereltek. A tetőt zsindely fedi.

A fűtésről kombi gázkazán gondoskodik.

A parkosított kertet öntözőrendszer locsolja helyettünk. A megközelítőleg 70m2-es fedett terasz kiválló helyszíne a családi összejöveteleknek és a pihenésnek. Az itt található jacuzzi is a vételár részét képezi.

Parkolni a Sziláégyi Erzsébet utcáról elektromos garázsajtón megközelíthető 2 autó tárolására kialakított garázsban tudunk.

A villamos áram terhelhetőseége 1x32A.

Az üzlethelyiség gipszakrtonnal lett elválasztva, hogy akár 2 üzletet is üzemeltethessünk. A könnyedén elbontható válaszfallal 35m2-es helyiséget tudunk kialakítani.

Tárolásra a nappali alatt kialakított 13,5m2-es pince kiváló lehetőséget ad.

Készpénzes vevők jelentkezését várjuk.

Amennyiben hirdetésem felkeltette az érdeklődését vagy egyéb információra van szüksége hívjon bizalommal!
Molnár Rozália

Molnár Rozália

Hívjon bizalommal

+36-20-329-Mutasd!

További hirdetéseim

Ingatlaniroda
GDN Ingatlanhálózat - Újpest
+36 1 797 3933

Küldjön üzenetet

Visszahívást kérek

Hasonló ingatlanok