Eladó Lakás (téglaépítésű) Budapest XXIII. kerület - Zsellér dűlő

87 m2Alapterület 3 Szoba
69 900 000 Ft Ár
380887Azonosító
További adatok

Udvari Kilátás

Felújított Állapot

Tégla Szerkezet

Megújuló energia Fűtés

Összkomfort Komfort

Saját beálló Parkolás

Emelet Földszint

Nincs Lift

Tömegközlekedés

Nem Amerikai konyhás

Van Kertkapcsolat

1940 Építés éve

Hitelkalkuláció – a részletekért kattintson valamelyik bank logójára!

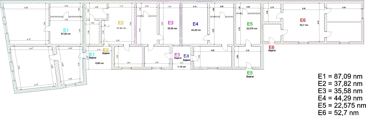
Soroksár frekventált részén eladó 87 m2-es lakás, ami irodának is kiválóan alkalmas!

A 6 lakásos ingatlan teljesen felújított, új tetőt kapott, 3 rétegű műanyag nyílászárókkal, hőszivattyús klímával ellátott.
A lakáshoz 2db saját gépkocsi beálló tartozik.

1.sz. lakás 87,09 m2
- előtér 12 m2
- szoba 24 m2
- szoba 25 m2
- nappali-konyha 12 m2
- fürdő 6,4 m2

A lakások ügyvédi megosztással kerülnek értékesítésre.

- víz 1db főmérő és lakásonként külön mellékmérők,
- villany lakásonként saját mérőórák,

Befektetésnek is kiváló, a környéken 220.000-350.000Ft/hó + rezsi áron vannak hasonló kiadó lakások, ami évente 2.500.000Ft bevételt is jelenthet.

Amivel segítjük az Ön ingatlanvásárlását:
- ingyenes hitelügyintézés,
- jogi háttér,
- földhivatali ügyintézés,
- energetikai tanúsítvány.

Irodánk 30 éves szakmai tapasztalattal áll ügyfelei rendelkezésére!
Várom szíves megkeresését.
Molnár Rozália

Molnár Rozália

Hívjon bizalommal

+36-20-329-Mutasd!

További hirdetéseim

Ingatlaniroda
GDN Ingatlanhálózat - Újpest
+36 1 797 3933

Küldjön üzenetet

Visszahívást kérek

Hasonló ingatlanok