Eladó Családi ház Helvécia - Kiskőrösi út közelében

49 m2Alapterület 2 Szoba
49 900 000 Ft Ár
393233Azonosító
További adatok

370 m2 Telek

Udvari Kilátás

Építés alatt Állapot

Könnyűszerkezet Szerkezet

Elektromos Fűtés

Összkomfort Komfort

Saját beálló Parkolás

Tömegközlekedés

Amerikai konyhás

Van Kertkapcsolat

2027 Építés éve

Hitelkalkuláció – a részletekért kattintson valamelyik bank logójára!

Otthonok és megoldások!
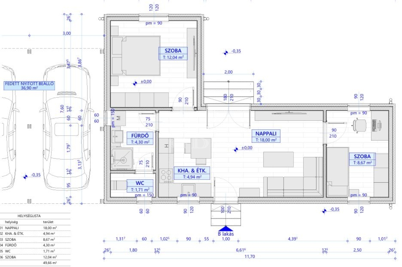
Helvécián belterületi aszfaltos utcában, 340 nm telken, új építésű könnyűszerkezetes építési móddal, 49 nm, amerikai konyhás nappali + 1 szobás, klímás ikerház, fedett gépkocsibeállóval eladó. Ideális választás idősebb korosztálynak, vagy fiataloknak, akik nem szeretnének nagy kertet gondozni. Kivitelezésben szerződött partnerünk a mai kornak és igényeknek megfelelő, energia hatékony építő anyagokkal építi fel, vállalt határidőre otthonát. A fotók referencia munkáról készültek.
További részletekért, műszaki leírásért, a terület megtekintéséért várom hívását!
Gombár János

Gombár János

Hívjon bizalommal

+36-30-338-Mutasd!

További hirdetéseim

Ingatlaniroda
GDN Ingatlanhálózat - Újpest
+36 1 797 3933

Küldjön üzenetet

Visszahívást kérek

Hasonló ingatlanok