Eladó Lakás (téglaépítésű) Budapest XIII. kerület - Klapka utca

44 m2Alapterület 2 Szoba
100 000 000 Ft Ár
392625Azonosító
További adatok

Utcai Kilátás

Újszerű Állapot

Tégla Szerkezet

23 m2 Erkély/terasz

Házközponti egyedi mérővel Fűtés

Összkomfort Komfort

Saját beálló Parkolás

Emelet 1

Van Lift

Kiváló Tömegközlekedés

Amerikai konyhás

Nincs Kertkapcsolat

2020 Építés éve

Közös költség 40 000 Ft

Északkeleti Tájolás

Hitelkalkuláció – a részletekért kattintson valamelyik bank logójára!

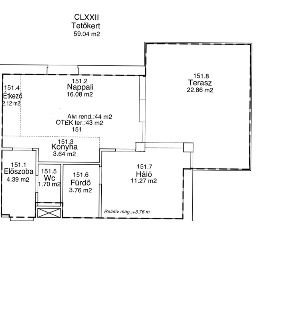
Eladó újépítésű kertkapcsolatos lakás a XIII. kerületben – Kassák Residence lakópark

Eladásra kínálunk a XIII. kerület közkedvelt részén, a Kassák Residence lakóparkban egy újépítésű, téglaépítésű, kertkapcsolatos lakást, amely kivételes adottságaival és nyugodt, zöld környezetével egyedülálló lehetőséget kínál.

A 60 nm-es saját kertrész az ingatlan egyik legnagyobb értéke, ideális pihenésre, kikapcsolódásra, családi és baráti összejövetelekhez.

Főbb jellemzők:

Amerikai konyhás nappali + étkező: 21,6 nm

Hálószoba

Fürdőszoba

Külön WC

Előszoba

Terasz: 23 nm

Saját kertkapcsolat: 60 nm

A nappali és a hálószoba külön klímaberendezéssel felszerelt

A modern műanyag nyílászárók redőnnyel és szúnyoghálóval felszereltek, a klímaberendezések pedig egész évben gondoskodnak a kellemes komfortérzetről.

Extrák:

4 nm-es tároló, opcionálisan megvásárolható: +3.000.000 Ft

Gépkocsi-beálló, elektromos autó töltési lehetőség kialakításával, opcionálisan: +10.000.000 Ft

A lakópark csendes, zöld környezetben található, ugyanakkor kiváló infrastruktúrával rendelkezik: üzletek, tömegközlekedés, iskolák, óvodák, egészségügyi intézmények gyorsan elérhetők.

Ez az ingatlan ideális választás saját otthonnak, pároknak, kiscsaládosoknak vagy befektetésnek egyaránt.

Hitelre vásárló ügyfeleinknek teljes körű, díjmentes, bankfüggetlen ügyintézést biztosítunk, valamint irodánk ügyvédje kedvező feltételekkel készíti el az adásvételi szerződést. Célunk, hogy Ön biztonságosan, kényelmesen és gördülékenyen bonyolíthassa le az ingatlanvásárlást.

Amennyiben ingatlana értékesítése is aktuális, kérje tapasztalt csapatunk személyre szabott ajánlatát, és bízza ránk a sikeres eladást.

D.M.
Dániel Mónika

Dániel Mónika

Hívjon bizalommal

+36-20-524-Mutasd!

További hirdetéseim

Ingatlaniroda
GDN Ingatlanhálózat - Újpest
+36 1 797 3933

Küldjön üzenetet

Visszahívást kérek

Hasonló ingatlanok