Eladó Ikerház Budapest XVIII. kerület - Alacskai út

137 m2Alapterület 5 Szoba
149 900 000 Ft Ár
387741Azonosító
További adatok

375 m2 Telek

Kertre néző Kilátás

Új Állapot

Tégla Szerkezet

25 m2 Erkély/terasz

Hőszivattyú Fűtés

Összkomfort Komfort

Saját garázs Parkolás

Tömegközlekedés

Amerikai konyhás

Van Kertkapcsolat

2025 Építés éve

Hitelkalkuláció – a részletekért kattintson valamelyik bank logójára!

Eladó újépítésű ikerház Almáskertben – magas műszaki tartalommal!

Az ár négyzetméterre vetítve alig haladja meg az 1 millió Ft-ot, így kimagaslóan jó választás a környék újépítésű kínálatában.

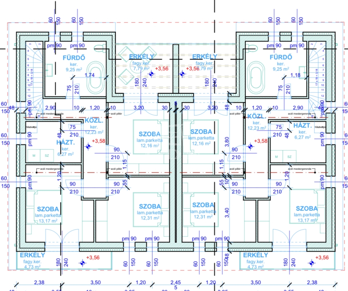
137 m²-es, újépítésű ikerház várja új tulajdonosát a XVIII. kerület közkedvelt, kertvárosias részén, Almáskertben. Az ingatlanhoz garázs, terasz, erkély és saját kert is tartozik.

A praktikus elrendezés:
• amerikai konyhás nappali
• 4 hálószoba
• 2 fürdőszoba WC-vel
• kamra és háztartási helyiség
• garázs + 17 m² terasz + 8 m² erkély

Kiemelt extrák és műszaki megoldások:
• elektromos garázskapu és tolókapu a kényelmes bejárásért
• riasztórendszer és kamerarendszer telepítve – biztonság felsőfokon
• napelem előkészítés – energiatakarékos megoldásokra hangolva
• hőszivattyús padlófűtés a teljes házban
• klíma előkészítés / nappaliban kiépített klíma
• 3 rétegű hőszigetelt nyílászárók
• vastag hő- és hangszigetelések mindenhol

A vételár tartalmazza:
• hideg- és melegburkolatok 5.000 Ft/m² értékben
• szaniterek és belső ajtók választható kivitelben

A kivitelezőről:
Megbízható, tapasztalt cég, számos referenciamunkával a környéken, amelyek személyesen is megtekinthetők. A minőségi kivitelezés és a korrekt együttműködés garantált.

Elhelyezkedés és átadás:
• Almáskert újépítésű, nyugodt részén, kiváló közlekedéssel
• átadás: 2025. IV. negyedév
• már 30% önerővel lefoglalható
• állami támogatások igénybe vehetők

Ár: 145.000.000 Ft

A hét bármely napján elérhető vagyok , akár hétvégén is! Hitel- és jogi háttér biztosított.
Gombár János

Gombár János

Hívjon bizalommal

+36-30-338-Mutasd!

További hirdetéseim

Ingatlaniroda
GDN Ingatlanhálózat - Újpest
+36 1 797 3933

Küldjön üzenetet

Visszahívást kérek

Hasonló ingatlanok