Eladó Ikerház Budapest XVI. kerület - Szérű utca

164 m2Alapterület 4 Szoba
121 900 000 Ft Ár
393773Azonosító
További adatok

280 m2 Telek

Kertre néző Kilátás

Jó állapotú Állapot

Tégla Szerkezet

7 m2 Erkély/terasz

Gáz (cirkó) Fűtés

Dupla komfort Komfort

Saját beálló Parkolás

Kiváló Tömegközlekedés

Nem Amerikai konyhás

Van Kertkapcsolat

1988 Építés éve

Délnyugati Tájolás

Hitelkalkuláció – a részletekért kattintson valamelyik bank logójára!

ÖSSZEKÖLTÖZŐK, NAGYCSALÁDOSOK FIGYELEM!

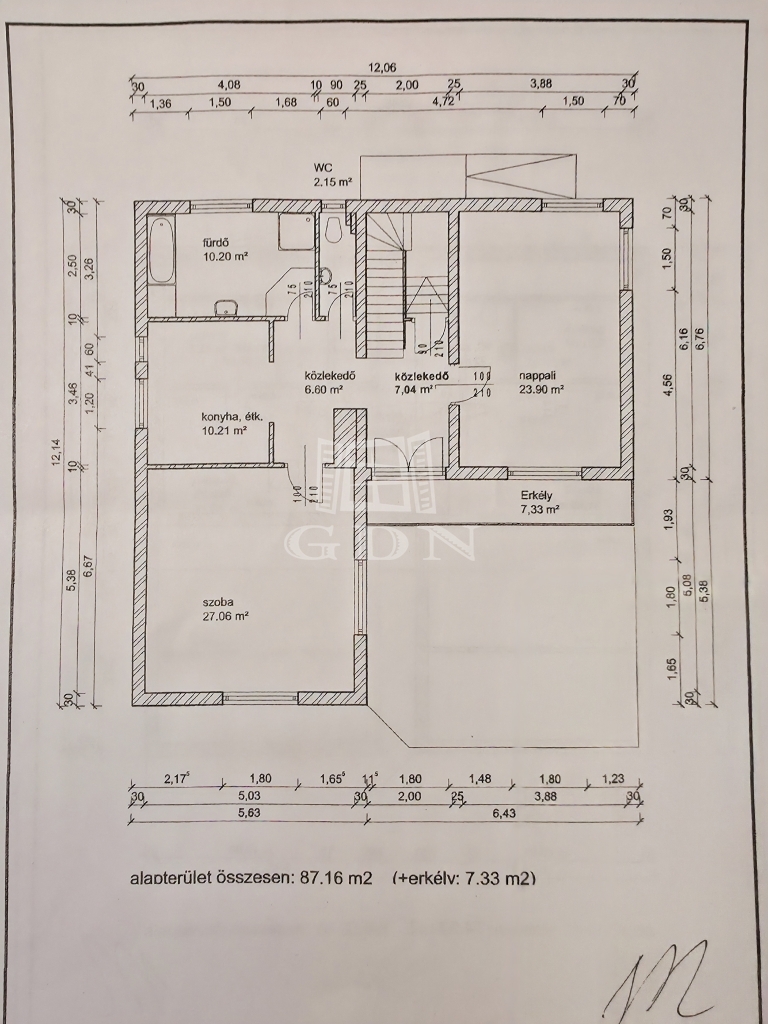
XVI.kerület Sashalom városrészén a Szérű utcában, megvételre kínálok egy bruttó 185 nm-es (nettó 168 nm), belső 2 szintes ikerház felet. (vízszintesen iker)

A lakást 2024-ben műszakilag felújították. Ennek keretében a nyílászárókat 3 rétegű műanyag ablakra cserélték redőnnyel és rovarhálóval, a teljes tetőszerkezet, beleértve a héjazat is teljesen megújult.

Az 1988-ban épült ingatlant egy saját lépcsőházon keresztül tudjuk megközelíteni, ahol helyet kapott egy tágas, délnyugati fekvésű nappali, egy keleti fekvésű hálószoba, konyha, fürdőszoba illetve külön wc. A közlekedőből érjük el a 7 nm-es erkélyt.

Szintén a közlekedőből jutunk fel a beépített teljes értékű tetőtérbe, ahol ki lett alakítva 2 db külön nyíló szoba, gardrób helyiség és egy zuhanyzós fürdőszoba. A nagyszoba további lehetőségeket rejt magába, szinte bárhogy lehet alakítani, akár 2 db szobává is.

A kizárólagos használatú saját (255 nm) kert az intimitást garantálja.
A viacolor térkő burkolattal kirakott részen, 1 autó tud megállni telken belül, az utcán 2 db autó, mely a társtulajdonossal fel lett osztva. A lakáshoz tartozik egy 15 nm-es tároló is.

A Használati megosztási szerződés szabályozza az esetleges közös terheket, előnyöket.

Közlekedése, infrastruktúrája kiváló! Sashalmi hév megálló 3 perc, akárcsak a SPAR szupermarket. Közelben patika, Iskola, Óvoda, minden is.

Azon ügyfeleimnek ajánlom ezt a remek elosztású kertvárosi ingatlant, aki nagy családdal költözne és nyitott az esetleg átalakításhoz, felújításhoz.

Az ingatlan előre egyeztetett időpontban, kizárólag ingatlanközvetítő bevonásával lehetséges!

Amennyiben hirdetésem felkeltette érdeklődését, várom hívását a hét bármely napján. tp
Gombár János

Gombár János

Hívjon bizalommal

+36-30-338-Mutasd!

További hirdetéseim

Ingatlaniroda
GDN Ingatlanhálózat - Újpest
+36 1 797 3933

Küldjön üzenetet

Visszahívást kérek

Hasonló ingatlanok