Eladó Lakás (téglaépítésű) Budapest XIV. kerület - Szugló utca

65 m2Alapterület 3 Szoba
118 000 000 Ft Ár
395373Azonosító
További adatok

Udvari Kilátás

Újszerű Állapot

Tégla Szerkezet

8 m2 Erkély/terasz

Házközponti egyedi mérővel Fűtés

Összkomfort Komfort

Garázs/beálló vásárolható Parkolás

Emelet 2

Van Lift

Kiváló Tömegközlekedés

Amerikai konyhás

Nincs Kertkapcsolat

2019 Építés éve

Közös költség 27 000 Ft

Hitelkalkuláció – a részletekért kattintson valamelyik bank logójára!

Eladó csendes, modern lakás Zugló központjában!

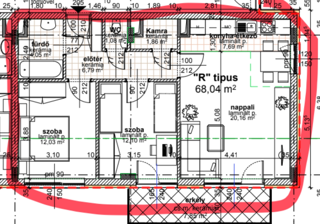
Zugló központi részén eladó egy újszerű, tégla építésű lakás egy rendezett társasház 2. emeletén. Az épület két lifttel rendelkezik, a lakás pedig a gondozott belső kertre néz, így rendkívül csendes és nyugodt környezetet biztosít.

A 65 m²-es lakótérhez egy 8 m²-es terasz tartozik. Az elrendezés praktikus és jól kihasználható: amerikai konyhás nappali, két külön nyíló szoba, zuhanyzós fürdőszoba, külön WC, valamint egy háztartási helyiség is rendelkezésre áll.

A lakás felszereltsége igényes: műanyag nyílászárók, redőnyök, szúnyoghálók és klíma biztosítják a kényelmet. A közművek egyedi mérés alapján működnek, a fűtést a társasház saját kazánja biztosítja.

A szobák parkettával burkoltak, míg a konyha, fürdőszoba, WC és közlekedő egységes, esztétikus kőburkolatot kapott. A beépített konyhabútor a vételár részét képezi.

A környék infrastruktúrája kiváló: Aldi, Lidl, óvoda, piac és játszótér mindössze 5–10 perc sétára található, a tömegközlekedés (villamos, troli, busz) pedig kb. 5 perc alatt elérhető.

A társasház lakóközössége kulturált és összetartó, az ingatlan jogilag rendezett.

Igény esetén a társasház mélygarázsában parkolóhely is vásárolható, amely nem része a vételárnak.

Ideális választás saját otthonnak vagy befektetésnek is!
Gombár János

Gombár János

Hívjon bizalommal

+36-30-338-Mutasd!

További hirdetéseim

Ingatlaniroda
GDN Ingatlanhálózat - Újpest
+36 1 797 3933

Küldjön üzenetet

Visszahívást kérek

Hasonló ingatlanok