Eladó Lakás (téglaépítésű) Budapest XIII. kerület - Visegrádi utca

42 m2Alapterület 1 Szoba
67 500 000 Ft Ár
392068Azonosító
További adatok

Udvari Kilátás

Felújított Állapot

Tégla Szerkezet

Elektromos Fűtés

Összkomfort Komfort

Utcán, közterületen Parkolás

Emelet 1

Van Lift

Kiváló Tömegközlekedés

Amerikai konyhás

Nincs Kertkapcsolat

1920 Építés éve

Délnyugati Tájolás

Hitelkalkuláció – a részletekért kattintson valamelyik bank logójára!

Modern, galériás okosotthon eladó a 13. kerületben, a Visegrádi utca elején!

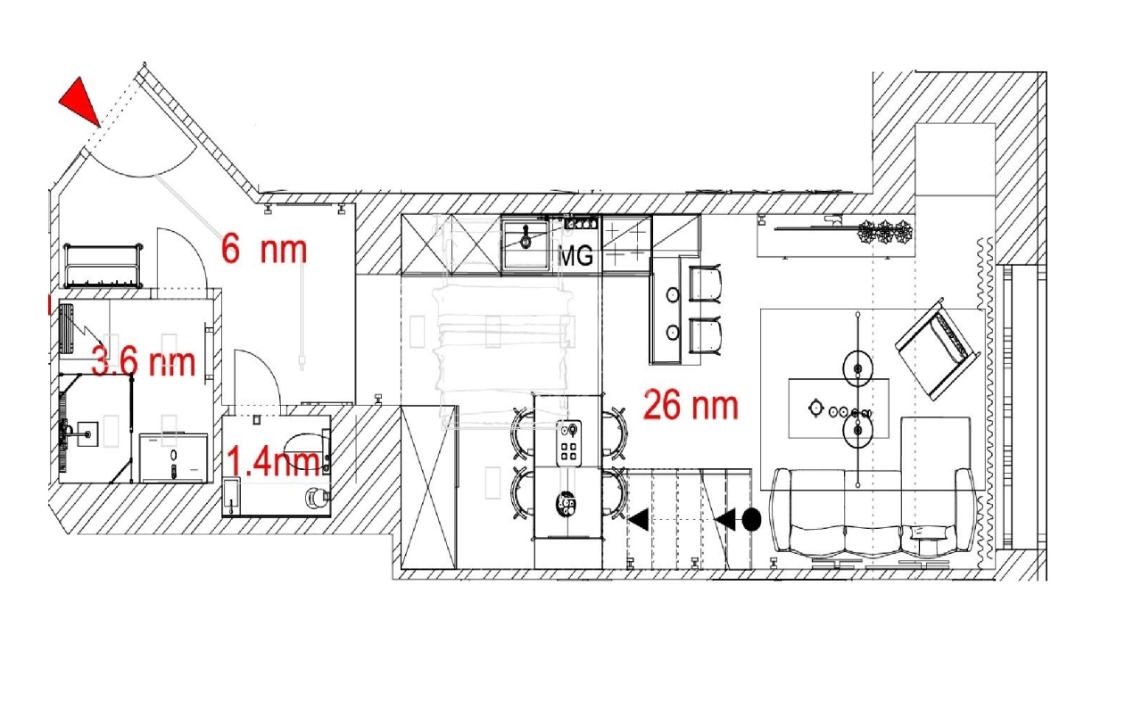
A XIII. kerület egyik legjobb részén, a Visegrádi utca elején, a körúthoz közel, egy szépen karbantartott, 6 szintes társasház 1. emeletén található ez a teljes körűen felújított, 41 m²-es, galériás, 1 szobás lakás.

A belsőépítész által megálmodott design, a prémium anyaghasználat és az okosotthon megoldások modern, kényelmes életteret biztosítanak – fiatal pároknak, első lakásként vagy befektetésnek is tökéletes választás.

Főbb jellemzők:
• Teljes körű műszaki és esztétikai felújítás
• 42 m² alapterület
• Padlófűtés minden helyiségben
• 3 rétegű, hő- és hangszigetelt nyílászárók
• Gree klíma
• Gépesített, egyedi tervezésű konyhabútor
• Belsőépítész által tervezett, alacsony energiaigényű lakás
• Részben bútorozott, kérésre teljes bútorzattal is elérhető (külön megállapodás szerint)
• Zuhanyzós fürdőszoba
• 1. emelet, galériás kialakítás

Lokáció: Nyugati tér, Lehel tér, Szent István körút pár perc sétára. Kiváló közlekedés, éttermek, kávézók, boltok közvetlen közelben.


Érdeklődni privát üzenetben vagy telefonon.
Molnár Rozália

Molnár Rozália

Hívjon bizalommal

+36-20-329-Mutasd!

További hirdetéseim

Ingatlaniroda
GDN Ingatlanhálózat - Újpest
+36 1 797 3933

Küldjön üzenetet

Visszahívást kérek

Hasonló ingatlanok