Eladó Lakás (téglaépítésű) Budapest XII. kerület - Kútvölgy kertkapcsolatos lakás-ház

93 m2Alapterület 4 Szoba
169 000 000 Ft Ár
388131Azonosító
További adatok

1100 m2 Telek

Panoráma Kilátás

Felújítandó Állapot

Tégla Szerkezet

20 m2 Erkély/terasz

Gáz (cirkó) Fűtés

Dupla komfort Komfort

Saját beálló Parkolás

Emelet Földszint

Nincs Lift

Közepes Tömegközlekedés

Nem Amerikai konyhás

Van Kertkapcsolat

1940 Építés éve

Közös költség 85 000 Ft

Hitelkalkuláció – a részletekért kattintson valamelyik bank logójára!

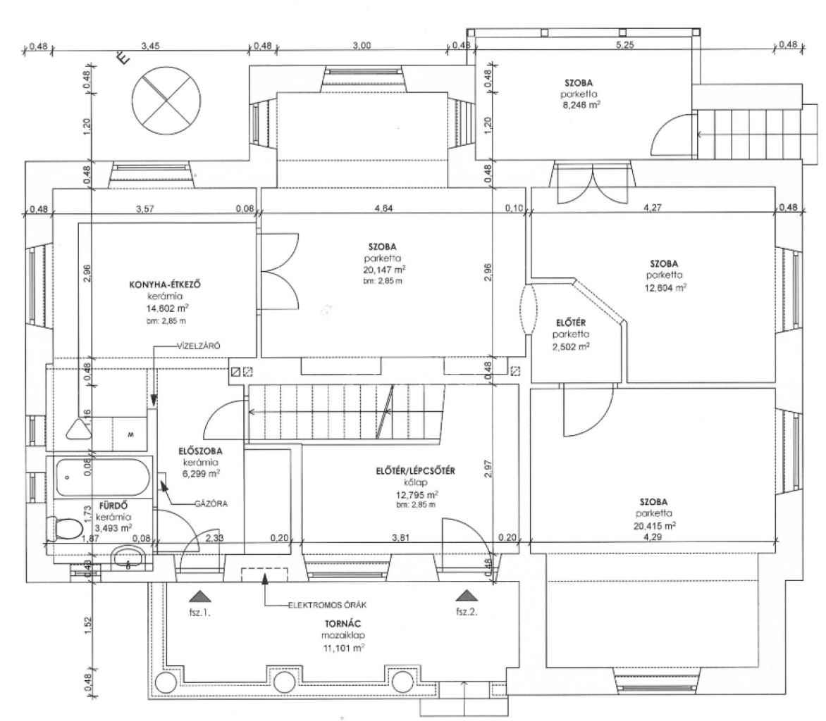
Eladásra kínálunk Kútvölgy kedvelt részén egy Ősfás 1100 m2 területen elhelyezkedő patinás házban elhelyezkedő 93 m2 lakást mely 250 m2-es közvetlen kertkapcsolattal rendelkezik.

A 93 m2-es lakás az épület földszintjén helyezkedik el.

Lakás elrendezése:

Földszint:
• 3 db. 20,1 - 20,1 - 12,6 m2, 12,6 m2 szoba, + 8,2 m2 télikert
• Konyha - étkező 14,6 m2
• Fürdőszoba 6,2 m2
• Közlekedő 6,2 m2
• Tornác 5,5 m2

Tároló - pince:
• 30 m2

Kert:
• Közvetlen 250-300 m2 kertrész + kerti kemence
• Kocsibeálló 2 autónak is kialakitható terület

A ház 1940-ben épült 55 cm vastag téglafalakkal. Az épület szerkezetileg jó állapotú – feljutása és korszerűsítése esedékes.

Az ingatlant fiatal pároknak -családoknak egyaránt ajánljuk.

A társasházban párhuzamosan kerül értékesítésre a hirdetésben szereplő 93 m2 és a felette található 100 db. első emeleti lakás.

Amennyiben Önnek a vásárláshoz szüksége lenne hitelre egyedi kedvezménnyel,kezdeményezheti a kapcsolatfelvételt bankfüggetlen hitelügyintézőinkkel, teljesen DÍJMENTESEN.

Az ingatlan részletes ismertetése és bemutatása előre egyeztetett időpontban lehetséges, melyet nagyon rugalmasan kezelünk, akár HÉTVÉGÉN is.

Amennyiben felkeltette az érdeklődését, további kérdéseivel kapcsolatban várom jelentkezését!
Molnár Rozália

Molnár Rozália

Hívjon bizalommal

+36-20-329-Mutasd!

További hirdetéseim

Ingatlaniroda
GDN Ingatlanhálózat - Újpest
+36 1 797 3933

Küldjön üzenetet

Visszahívást kérek

Hasonló ingatlanok