Eladó Üzlethelyiség Budapest XI. kerület - XI. kerület

252 m2Alapterület 0 Szoba
199 000 000 Ft Ár
371649Azonosító
További adatok

Utcai Kilátás

Felújítandó Állapot

Tégla Szerkezet

Hőszivattyú Fűtés

Saját beálló Parkolás

Tömegközlekedés

1960 Építés éve

Keleti Tájolás

Eladó élelmiszerüzlet a XI. kerületben!

Az üzlet frekventált helyen van közel 724m2 telekterületen helyezkedik el. Jó parkolási lehetőség és közvetlen buszmegálló közelséggel rendelkezik.

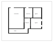
Alapterület: 252m2 -270m2
• Üzlet: 120m2
• Raktár: 150m2
• Egyedi: 60m2

Az élelmiszerüzlet 35 éve folyamatos működését a bejáratott vásárlóközönség és az átmenő forgalom biztosítja.

A kereskedelmi egység nyereségesen működik, alkalmas a jelenlegi tevékenység folytatására vagy más kereskedelmi tevékenység működtetésére.

Az ingatlan fejlesztés estén ipari célű felhasználás esetén 3 – lakóingatlan estén 1 szinttel bővíthető.

Az eladási ár tartalmazza az üzletberendezését is.

Az ingatlan részletes ismertetése és bemutatása előre egyeztetett időpontban lehetséges, melyet nagyon rugalmasan kezelünk, akár HÉTVÉGÉN is.
Amennyiben felkeltette az érdeklődését, további kérdéseivel kapcsolatban várom jelentkezését!
Gombár János

Gombár János

Hívjon bizalommal

+36-30-338-Mutasd!

További hirdetéseim

Ingatlaniroda
GDN Ingatlanhálózat - Újpest
+36 1 797 3933

Küldjön üzenetet

Visszahívást kérek

Hasonló ingatlanok