Eladó Lakás (téglaépítésű) Budapest VII. kerület - Hernád utca

88 m2Alapterület 3 Szoba
122 550 000 Ft Ár
389923Azonosító
További adatok

Utcai Kilátás

Felújítandó Állapot

Tégla Szerkezet

4 m2 Erkély/terasz

Gáz (konvektor) Fűtés

Összkomfort Komfort

Utcán, közterületen Parkolás

Emelet 3

Van Lift

Tömegközlekedés

Nem Amerikai konyhás

Nincs Kertkapcsolat

1920 Építés éve

Északkeleti Tájolás

Hitelkalkuláció – a részletekért kattintson valamelyik bank logójára!

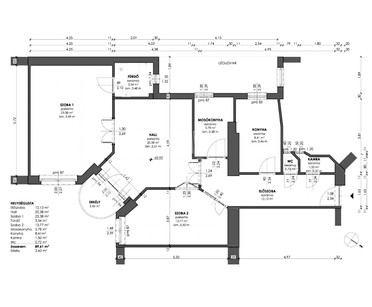
Eladásra kínálunk egy felújítandó állapotú, téglaépítésű lakást Budapest Hernád utcájában.
A lakás 92 négyzetméteres, helyet kapott benne 3 szoba, konyha, fürdőszoba, WC külön helyiségben, kamra előszoba, 3,5 m beltéri magassággal, nagy nyílászárókkal. Az ingatlanhoz tartozik egy 4 négyzetméteres erkély is, amely utcai kilátást nyújt.
A lakóegység a ház 3. emeletén található körfolyosóról nyílik, a házban lift biztosítja a kényelmes közlekedést.
A társasház egy impozáns épület, kívülről felújításra szorul, a lépcsőház új bejárati ajtóval, szépen felújított ikonikus mozaikcsempével díszített, tiszta lépcsőház.
A fűtésről gázkonvektorok, a melegvízről villanybojler gondoskodik.
Boltok közelben.
Közlekedés jó.
A környék csendes és nyugodt, egyirányú forgalom a ház előtt, ideális választás lehet azok számára, akik nyugalmat keresnek.
ID.389923
Molnár Rozália

Molnár Rozália

Hívjon bizalommal

+36-20-329-Mutasd!

További hirdetéseim

Ingatlaniroda
GDN Ingatlanhálózat - Újpest
+36 1 797 3933

Küldjön üzenetet

Visszahívást kérek

Hasonló ingatlanok