Eladó Lakás (téglaépítésű) Budapest VI. kerület - Andrássy út

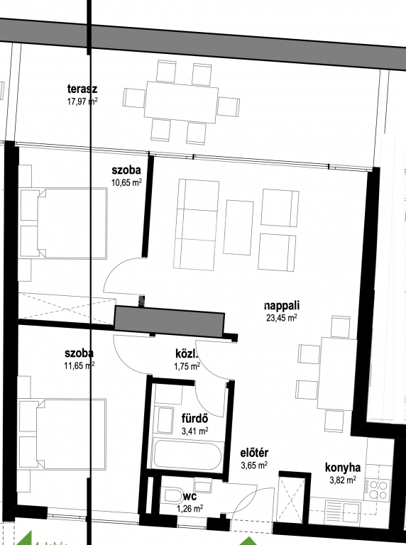
67 m2Alapterület 3 Szoba
201 000 000 Ft Ár
316543Azonosító
További adatok

Utcai Kilátás

Új Állapot

Tégla Szerkezet

18 m2 Erkély/terasz

Megújuló energia Fűtés

Luxus Komfort

Garázs/beálló bérelhető Parkolás

Emelet 3

Legfelső emelet

Van Lift

Kiváló Tömegközlekedés

Nem Amerikai konyhás

Nincs Kertkapcsolat

2021 Építés éve

Közös költség 18 000 Ft

Délnyugati Tájolás

Hitelkalkuláció – a részletekért kattintson valamelyik bank logójára!

Birtokoljon egy részt a világörökség részéből. Budapest legelegánsabb sugárútján valósult meg ez a projekt ahol a korhűen felújított palota legfelső szintjén került kialakításra ez a remek, nagyteraszos, napfényes lakás. Élvezze a belváros kényelmét és, hogy séta távolságban elérhetőek a Pesti Broadway színházai és a város legjobb éttermei. Korszerű gépészettel, felület hűtéssel és fűtéssel és szellőztető rendszerrel van felszerelve, az ablakokon elektromosan mozgatható árnyékolók. Mivel emeletráépítés során került kialakításra a lakás így minden helyiség teljes értékű belmagassággal rendelkezik. A nappaliból nyíló, utcai tájolású terasz kellemes helyszíne lehet a nyáresti vacsoráknak. A hálószobák jól bútorozhatóak, a szerencsés ablak kiosztásnak köszönhetően még a fürdőszoba is ablakos. A szomszédos luxus szálóda szolgáltatásait is a lakók kényelmét szolgálja. A közelben teremgarázs bérelhető vagy 40.000EUR ellenében vásárolható.
Molnár Rozália

Molnár Rozália

Hívjon bizalommal

+36-20-329-Mutasd!

További hirdetéseim

Ingatlaniroda
GDN Ingatlanhálózat - Újpest
+36 1 797 3933

Küldjön üzenetet

Visszahívást kérek

Hasonló ingatlanok