Eladó Lakás (téglaépítésű) Budapest V. kerület - Hercegprímás utca

96 m2Alapterület 2 + 1 Szoba
289 900 000 Ft Ár
389567Azonosító
További adatok

Utcai Kilátás

Felújított Állapot

Tégla Szerkezet

Gáz (cirkó) Fűtés

Dupla komfort Komfort

Utcán, közterületen Parkolás

Emelet 1

Van Lift

Tömegközlekedés

Amerikai konyhás

Nincs Kertkapcsolat

1879 Építés éve

Keleti Tájolás

Hitelkalkuláció – a részletekért kattintson valamelyik bank logójára!

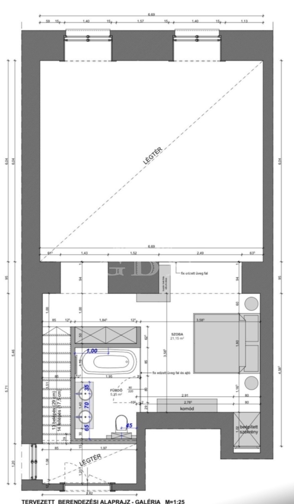
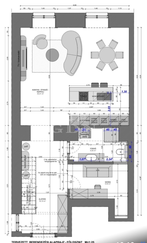
Egyedi, kétszintes luxusotthon a Bazilika szomszédságában – kifinomult elegancia Budapest szívében!

Budapest történelmi központjában, a Szent István Bazilika mellett kínálunk megvételre egy egyedülálló, belső kétszintes luxuslakást, amelyben a nagypolgári stílus és a kortárs design harmonikusan találkozik.

A 96 m²-es lakás tágas terekkel, modern megoldásokkal és gondosan megtervezett részletekkel várja új tulajdonosát. Az alsó szinten világos nappali nyílik az amerikai konyhával és látványos, kerámiaburkolatú konyhaszigettel, továbbá egy hálószoba, zuhanyzós fürdő és nagyméretű előtér található beépített szekrényekkel.
A felső szintre elegáns lépcső vezet, ahol egy privát hálószoba saját fürdővel, vitrines gardróbfal és galériaszerű közlekedő kapott helyet.

A két szintet 20 cm vastag vasbeton födém választja el, így a lakás nemcsak esztétikailag, hanem műszakilag is kifogástalan. A 4,65 méteres belmagasság tágas, levegős atmoszférát teremt, amelyet a gondosan megválasztott anyagok és színek tovább fokoznak.

A teljeskörű felújítás során kizárólag prémium anyagokat alkalmaztak: olasz és spanyol design burkolatok, Roberto Cavalli tapéták, különleges díszítő falfelületek, minőségi diófa bútorok, valamint modern hang- és fényrendszer teszi különlegessé az enteriőrt.
A kényelmet padlófűtés, rejtett klímarendszer (hűtés-fűtés-szellőztetés), 3 rétegű nyílászárók és energiatakarékos LED világítás biztosítják.

A nappali központi eleme a Scavolini konyha és a látványos médiafal, amely tökéletesen illeszkedik az otthon kifinomult stílusához.

A rendezett, patinás társasházban található lakás a főváros egyik legjobb elhelyezkedésével büszkélkedhet: pár lépésre a Bazilika, az Opera, a Duna-part és a belváros legjobb éttermei, kávézói.

Ez az otthon azoknak szól, akik a belvárosi eleganciát, a modern kényelmet és a minőséget keresik egyetlen, stílusos térben.
Kivételes lehetőség Budapest egyik legértékesebb környékén.

Jöjjön el, nézze meg és tegyen ajánlatot!
ID:389567
Gombár János

Gombár János

Hívjon bizalommal

+36-30-338-Mutasd!

További hirdetéseim

Ingatlaniroda
GDN Ingatlanhálózat - Újpest
+36 1 797 3933

Küldjön üzenetet

Visszahívást kérek

Hasonló ingatlanok