Eladó Lakás (téglaépítésű) Budapest V. kerület - Október 6. utca

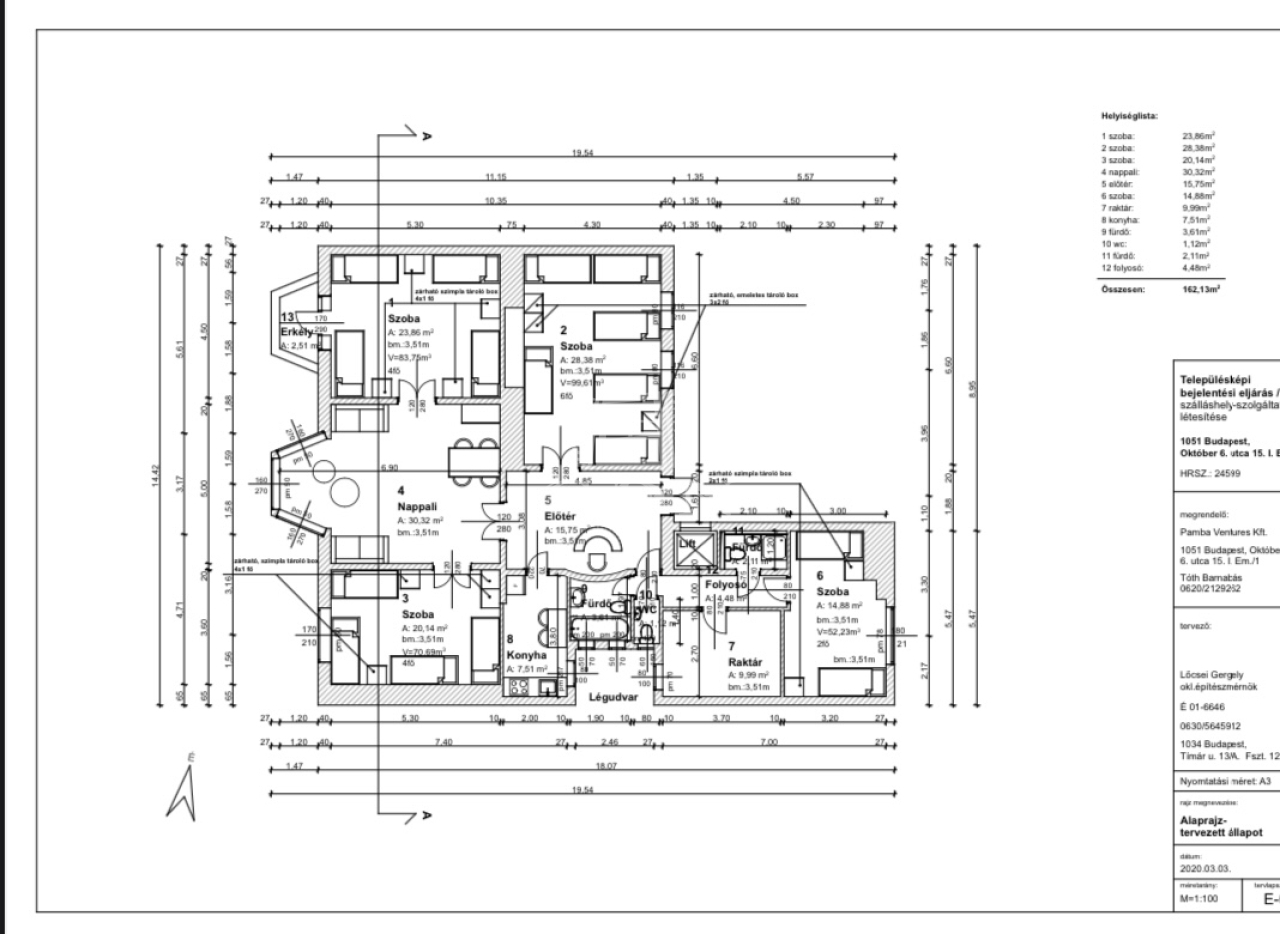
150 m2Alapterület 6 Szoba
349 000 000 Ft Ár
378991Azonosító
További adatok

Utcai Kilátás

Jó állapotú Állapot

Tégla Szerkezet

Házközponti Fűtés

Dupla komfort Komfort

Utcán, közterületen Parkolás

Emelet 1

Van Lift

Háziállat Igen

Kiváló Tömegközlekedés

Nem Amerikai konyhás

Nincs Kertkapcsolat

1922 Építés éve

Déli Tájolás

Hitelkalkuláció – a részletekért kattintson valamelyik bank logójára!

Kihagyhatatlan lehetőség a belváros szívében!

Eladó Budapest szívében egy 6 szobás gyönyörű lakás a Bazilikától 3 perc sétára az Október 6. utcában!

Igényes utcafronti látkép, rendezett belső udvar és folyosók.
A házba lépve egy akadálymentes folyosó vezet a lifthez, a lift pedig közvetlenül az ajtó mellett van, valamint lépcsővel is közvetlenül felmehetünk az 1. emeletre.

A tágas előszobából belépve egy tágas hallba lépünk, amelyből nyílik még 2 tágas szoba, melyből az egyik erkélyes.

Az előszobából jobbra további 1 nagy szoba, balra pedig konyha, mosdók és egy folyosón át további 2 kisebb szoba található.

IRODÁNAK KIFEJEZETTEN AJÁNLJUK!


Ha Ön nem rendelkezik a teljes vételárral, BANKFÜGGETLEN hitelcentrumunk rendelkezésére áll, amely minden elérhető bank és hitelintézet ajánlatát versenyezteti, ráadásul DÍJMENTESEN!
Amennyiben szeretné megtekinteni, illetve kérdése van az ingatlannal kapcsolatban kérem, hívjon bizalommal, akár hétvégén is!
Molnár Rozália

Molnár Rozália

Hívjon bizalommal

+36-20-329-Mutasd!

További hirdetéseim

Ingatlaniroda
GDN Ingatlanhálózat - Újpest
+36 1 797 3933

Küldjön üzenetet

Visszahívást kérek

Hasonló ingatlanok