Eladó Lakás (téglaépítésű) Budapest IV. kerület - Deák Ferenc utca

84 m2Alapterület 3 Szoba
79 900 000 Ft Ár
392155Azonosító
További adatok

Kertre néző Kilátás

Jó állapotú Állapot

Tégla Szerkezet

14 m2 Erkély/terasz

Gáz (cirkó) Fűtés

Összkomfort Komfort

Utcán, közterületen Parkolás

Emelet 1

Legfelső emelet

Nincs Lift

Tömegközlekedés

Nem Amerikai konyhás

Nincs Kertkapcsolat

Tetőtéri ingatlan

2010 Építés éve

Hitelkalkuláció – a részletekért kattintson valamelyik bank logójára!

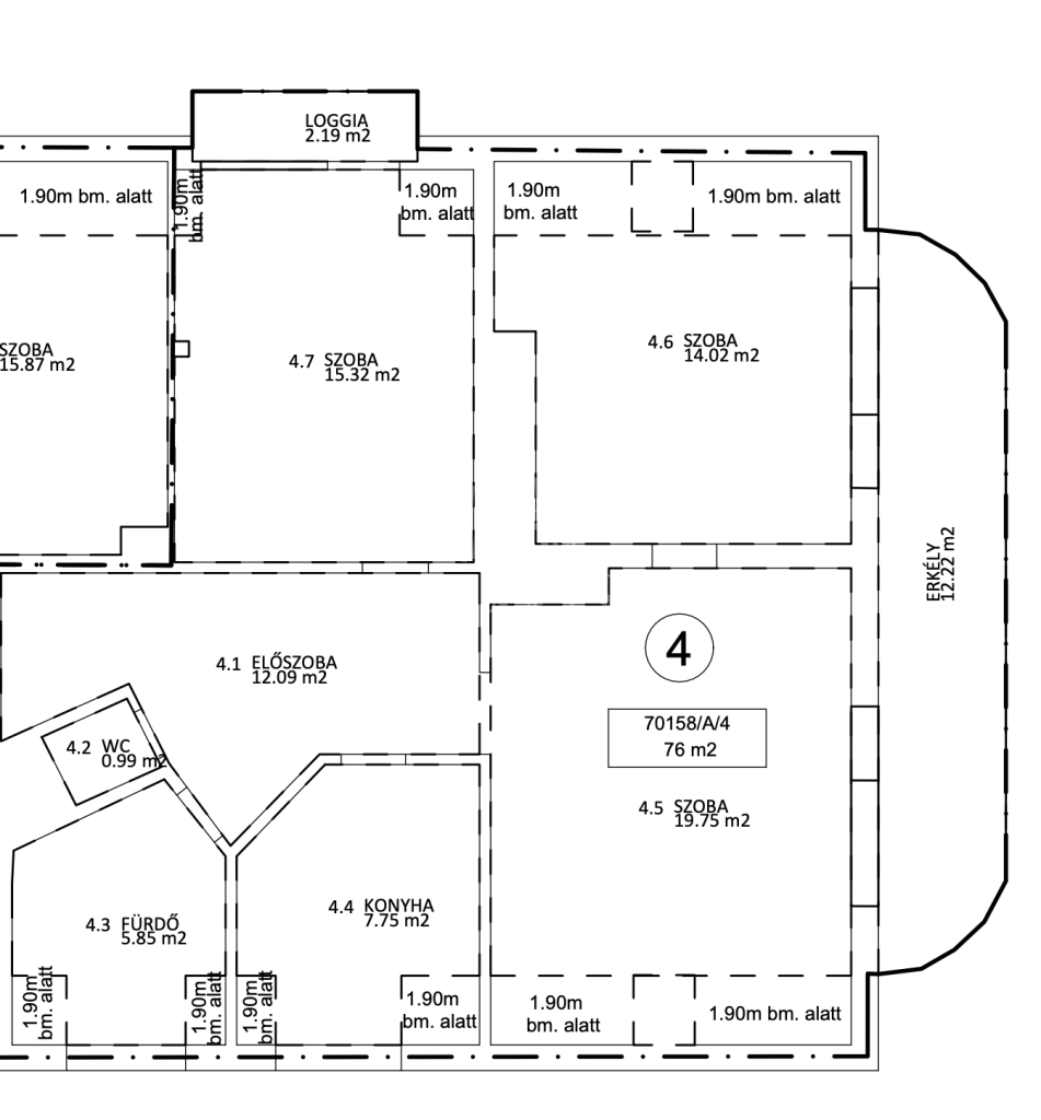
IV. kerületben, a Deák Ferenc utcában eladó egy 84 m2-es, ERKÉLYES (14 m2), 3 szobás, CSENDES, VILÁGOS, jó állapotú lakás.

A 2010-ben épült 5 lakásos társasház 1 emeletes.

A lakás főbb jellemzői:

- TEHERMENTES
- kitűnő beosztású
- 2 erkélyes
- zárt lépcsőház
- alacsony rezsi
- minden egyedileg mérhető
- ablakos konyhás

Fűtése: gáz cirkó

Közelben: Újpesti piac, bevásárlási lehetőségek, óvoda, iskola, bankok, posta, gyógyszertár stb.

Közlekedés: kiváló (Újpest központ 10 perc sétára)

További részletekért, hívjon bizalommal!
K.M.
Gombár János

Gombár János

Hívjon bizalommal

+36-30-338-Mutasd!

További hirdetéseim

Ingatlaniroda
GDN Ingatlanhálózat - Újpest
+36 1 797 3933

Küldjön üzenetet

Visszahívást kérek

Hasonló ingatlanok