Eladó Családi ház Bana - József Attila utca

90 m2Alapterület 3 Szoba
13 500 000 Ft Ár
389808Azonosító
További adatok

1730 m2 Telek

Utcai Kilátás

Felújítandó Állapot

Vegyes falazat Szerkezet

Gáz (konvektor) Fűtés

Komfort Komfort

Saját beálló Parkolás

Tömegközlekedés

Nem Amerikai konyhás

Van Kertkapcsolat

1940 Építés éve

Hitelkalkuláció – a részletekért kattintson valamelyik bank logójára!

Eladó családi ház Banán- csendes falusi környezetben, mégis jó infrastruktúrával.

Ingatlan bemutatása
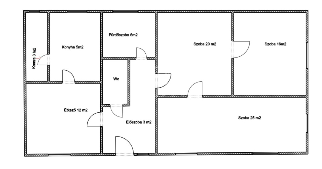
Banán, egy kb 2000 fős kis községben kínálunk eladásra egy 1940-58 körül épült, vegyes falazatú, három szobás családi házat.

Az ingatlan szerkezete masszív, jó felújítási alapot nyújt, miközben megőrzi a régi idők hangulatát.

A három szoba mellett konyha és egyéb mellékhelyiségek állnak rendelkezésre, így család számára is kényelmes elrendezésű lehet.

A fűtésről gázkonvektorok gondoskodnak, de van cserépkályha is, ami hangulatos, alternatív fűtési megoldást jelent téli estéken.

Ez a kétféle fűtés kombináció stabil, rugalmas és költséghatékony lehet.

Az ingatlan négyzetméter ára rendkívül kedvező, különösen, ha figyelembe vesszük a település környékén zajló ipari fejlesztéseket, amelyek tovább növelhetik majd az ingatlan értékét.

Miért éri meg Bana települését választani?

Kedvező elhelyezkedés.

A település jelentősen részesül a közlekedési előnyökből: mindössze kb. 5,5 km-re halad el az M1-es autópálya, így gyors és kényelmes elérhetőség biztosított.

Két jelentősebb város is könnyen megközelíthető: Győr kb. 20 km-re, Komárom kb. 23 km-re van.

Nyugodt, falusi életminőség.

A falusi jelleg megőrzi a nyugalmat, a természetközeli életstílust, miközben nem kell lemondani a modern kényelmekről.

Az utak és közlekedési kapcsolatok jók: az autópálya közeli elérhetősége komoly előnyt jelent ingázás vagy jövőbeni befektetés szempontjából.

Fejlődési potenciál nagy, hiszen az elmúlt pár évben jelentős ipari fejlesztések zajlottak.

Ez a lokáció jó lehetőség befektetőknek, vállalkozóknak, de családoknak is, akik a jövőben nem csak lakhatásra, hanem értéknövekedésre is gondolnak.

A történelmi hangulat, a falusi értékek és a közösségi élet mind hozzájárulnak egy olyan helyhez, ahol nemcsak lakni, de élni is érdemes.

Ez a családi ház Banán nemcsak egy hangulatos, régi stílusú ingatlan, hanem olyan befektetés is lehet, amely a falusi nyugalom és a modern infrastruktúra előnyeit ötvözi.

A kedvező ár, a fűtési rugalmasság, valamint a közeli ipari fejlesztések komoly potenciált jelentenek nem csak jelenlegi lakók, hanem jövőbeni tulajdonosok számára is.

Az ingatlan tehermentes- azonnal költözhető, csak készpénzre vásárolható meg!

Megtekintés miatt kérem keressen elérhetőségeim valamyelyikén.
Molnár Rozália

Molnár Rozália

Hívjon bizalommal

+36-20-329-Mutasd!

További hirdetéseim

Ingatlaniroda
GDN Ingatlanhálózat - Újpest
+36 1 797 3933

Küldjön üzenetet

Visszahívást kérek

Hasonló ingatlanok