Eladó Ikerház Balatonkeresztúr - Új építésű lakás közel a Balatonhoz

42 m2Alapterület 2 Szoba
59 500 000 Ft Ár
394262Azonosító
További adatok

300 m2 Telek

Panoráma Kilátás

Új Állapot

Könnyűszerkezet Szerkezet

14 m2 Erkély/terasz

Egyéb Fűtés

Összkomfort Komfort

Saját beálló Parkolás

Tömegközlekedés

Amerikai konyhás

Van Kertkapcsolat

2026 Építés éve

Hitelkalkuláció – a részletekért kattintson valamelyik bank logójára!

ÚJ LEHETŐSÉG BALATONKERESZTÚRON!

Elindult az építkezés!
Megkezdődtek egy modern ikerház alapozási munkálatai Balatonkeresztúron, jelen hirdetésben a kisebbik, nettó 42 m²-es lakást kínáljuk megvételre.

✨ Amit kínálunk:
✔️ Teljesen kulcsrakész, költözhető állapot
✔️ 300 négyzetméteres privát, déli tájolású kert
✔️ Saját terasz ☀️
✔️ Nyugodt, balatoni környezet a csatornaparttól 200 m-re, a szabadstrand, hajókikötő 400 m.

Ár: 59.5 millió Ft

Tervezett átadás: 2026 nyara

Ha egy modern, gondtalan otthont keresel a Balaton közelében – akár saját részre, akár befektetésnek – ez egy kiváló lehetőség!

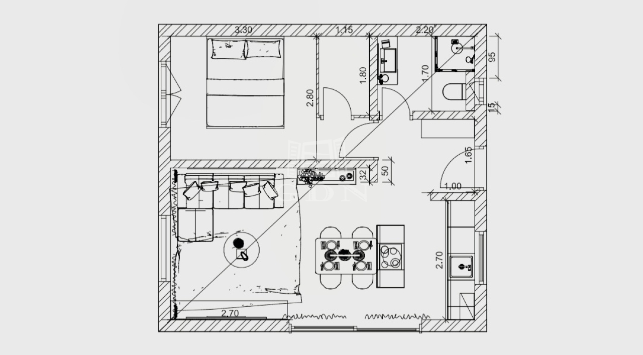
Alaprajz és műszaki tartalom leírásért érdeklődj üzenetben vagy vedd fel velünk a kapcsolatot.

2026.04.30-ig megtörténő szerződéskötés esetén egy Wellis jakuzzit vagy öntözőrendszert adunk ajándékba!
Molnár Rozália

Molnár Rozália

Hívjon bizalommal

+36-20-329-Mutasd!

További hirdetéseim

Ingatlaniroda
GDN Ingatlanhálózat - Újpest
+36 1 797 3933

Küldjön üzenetet

Visszahívást kérek

Hasonló ingatlanok