Eladó Ikerház Albertirsa - ÚJ ÉPÍTÉSŰ 100%-os készültséggel!

124 m2Alapterület 5 Szoba
98 000 000 Ft Ár
388701Azonosító
További adatok

730 m2 Telek

Kertre néző Kilátás

Új Állapot

Tégla Szerkezet

25 m2 Erkély/terasz

Hőszivattyú Fűtés

Dupla komfort Komfort

Saját beálló Parkolás

Kiváló Tömegközlekedés

Amerikai konyhás

Van Kertkapcsolat

2025 Építés éve

Délkeleti Tájolás

Hitelkalkuláció – a részletekért kattintson valamelyik bank logójára!

ELADÓ ALBERTIRSÁN, egy KÖZPONTI, ÖSSZKÖZMŰVES, ASZFALTOZOTT UTCÁBAN ÚJ ÉPÍTÉSŰ, FÖLDSZINTES, AKADÁLYMENTES, AZONNAL BEKÖLTÖZHETŐ családi ház (kétlakásos társasház) SAJÁT KERTTEL, KÜLÖN BEJÁRATTAL. KÉT GENERÁCIÓNAK IS ALKALMAS, KIEMELKEDŐ MŰSZAKI TARTALOMMAL + H tarifával.

1. lakás GARÁZS épülettel
- Elrendezés: 4 hálószoba + nappali + 2 fürdő + kamra + háztartási helyiség
- Lakótér: 127 m2
- Terasz: 22 m2, 600m2-es SAJÁT KERT
- Külön épület: 37 m2, KÉTÁLLÁSOS GARÁZS
- Teljes hasznos nettó terület: 175 m2 (127 + 37 + 11)
- Ár: 118 M Ft


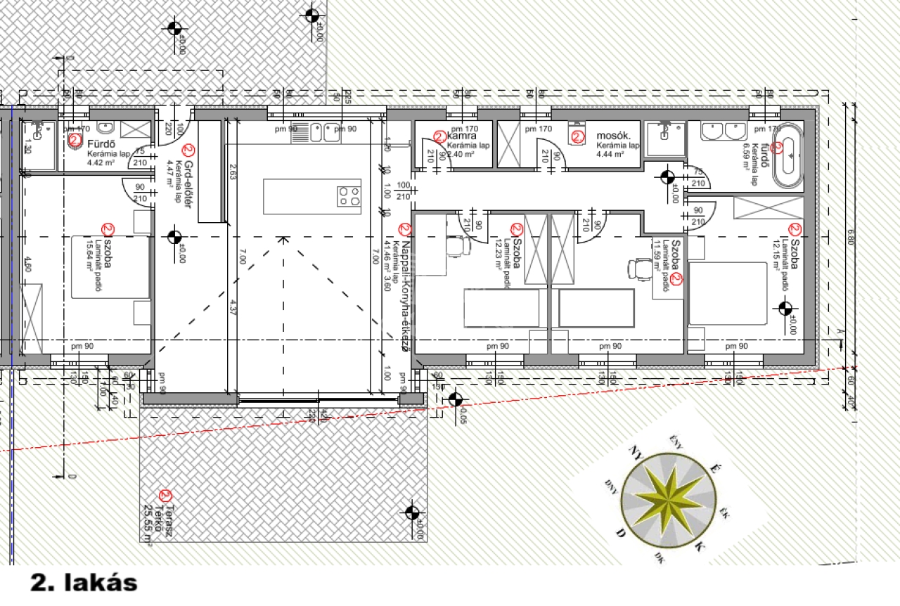
2. lakás
- Elrendezés: 4 hálószoba + nappali + 2 fürdő + kamra + háztartási helyiség
- Lakótér: 124 m2
- Terasz: 26 m2, 730m2-es SAJÁT KERT
- Teljes hasznos nettó terület: 137 m2 (124 + 13)
- Ár: 98 M Ft

Szerkezet és hőszigetelés:

- Főfal: Leier 30 NF tégla
- Válaszfalak: Leier 20 S és 10 tégla
- Padló alatti szigetelés: EPS 100 (10 cm)
- Külső nyílászárók: fehér műanyag, 3 rétegű üvegezéssel
- Födémszigetelés: 30 cm ásványgyapot
- Fa tetőszerkezet, tetőhéjazat: Bramac betoncserép
- Homlokzati szigetelés: 10 cm EPS
- Lábazati szigetelés: 5 cm + barna szemcsés díszvakolat

Gépészet és komfort:

VILLANYSZERELÉS: 3x16 A +1x25A H tarifás kiépítéssel.

- Hőszivattyú: japán Fujitsu High Power fűtésre és melegvíz-ellátásra
- Hidegburkolatos helyiségekben PADLÓFŰTÉS
- Szobákban és nappaliban digitális vezérlésű, HŰTŐ-FŰTŐ Galletti Flat FANCOILOK
- Fürdőszobánként 1 db törölközőszárító fali radiátor

Vízszerelés:
- 2 db fürdőszoba: fürdőnként törölközőszárítós RADIÁTOR; RAVAK ROSA II akril SAROKKÁD + zuhanyzó; GEBERIT WC falsík mögötti tartály nyomólappal.
A másik fürdőben zuhanyzó, + GEBERIT WC.


Elhelyezkedés és megközelítés
- ÖNÁLLÓ MEGKÖZELÍTHETŐSÉG, SAJÁT MÉRŐÓRÁK
- Vasútállomás: 15 perc séta / 2 perc autó
- Óvoda: ~900 m, bevásárlás: ~1 km
- Budapest: ~35 km

Praktikus, MINDENKI számára jól használható terek, korszerű gépészet és igényes szerkezet – MEGBÍZHATÓ, ÉRTÉKÁLLÓ választás.

Amennyiben felkeltette a meghirdetett ingatlan az érdeklődését, keressen bizalommal.

Kihagyhatatlan ajánlatok: CSOK+, kedvezményes kamatozású lakáshitelek.
Az ország szinte összes bankjának a hiteleit is kínáljuk, egyedi, általunk igénybe vehető kedvezményekkel, díjmentes ügyintézéssel.
Molnár Rozália

Molnár Rozália

Hívjon bizalommal

+36-20-329-Mutasd!

További hirdetéseim

Ingatlaniroda
GDN Ingatlanhálózat - Újpest
+36 1 797 3933

Küldjön üzenetet

Visszahívást kérek

Hasonló ingatlanok