Eladó Lakás (téglaépítésű) Budapest XIV. kerület - Erzsébet királyné útja

47 m2Alapterület 2 Szoba
67 000 000 Ft Ár
392450Azonosító
További adatok

Utcai Kilátás

Felújított Állapot

Tégla Szerkezet

2 m2 Erkély/terasz

Házközponti egyedi mérővel Fűtés

Összkomfort Komfort

Utcán, közterületen Parkolás

Emelet 1

Nincs Lift

Kiváló Tömegközlekedés

Nem Amerikai konyhás

Nincs Kertkapcsolat

1960 Építés éve

Hitelkalkuláció – a részletekért kattintson valamelyik bank logójára!

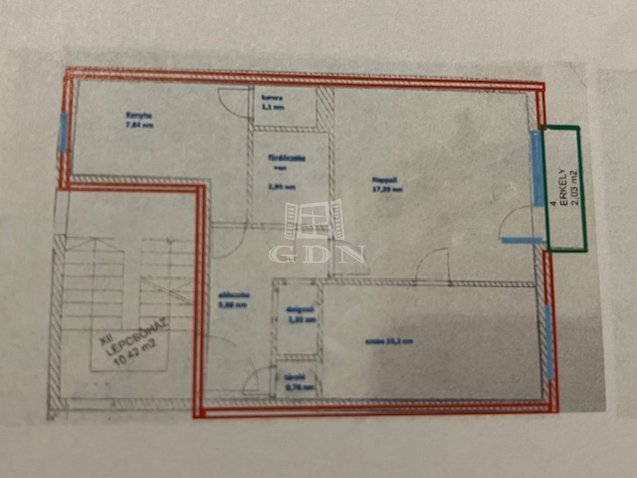
Fedezze fel ezt a felújított, 47 m²-es, téglaépítésű lakást Budapest szívében, az Erzsébet királyné útján!
Elhelyezkedése első emeleti, két szobával rendelkező igazi kincs.
A csendes környezet ideális választás lehet azoknak, akik nyugodt otthonra vágynak.
Az erkélyről pompás utcai kilátás nyílik, mely kapcsolódási pontként szolgál a városi élettel.
A lakás házközponti fűtése egyedi mérővel rendelkezik, garantálva ezzel a költséghatékony fenntartást.
Ideális otthon lehet, vagy befektetési lehetőség azok számára, akik Budapesten keresik igényes otthonukat.
Molnár Rozália

Molnár Rozália

Hívjon bizalommal

+36-20-329-Mutasd!

További hirdetéseim

Ingatlaniroda
GDN Ingatlanhálózat - Újpest
+36 1 797 3933

Küldjön üzenetet

Visszahívást kérek

Hasonló ingatlanok